家を買う・借りる・
不動産会社を探すならマイスマ
マイスマ > 中古一戸建て > 埼玉県 > さいたま市岩槻区 > さいたま市 岩槻区美園東2丁目 戸建て
マイスマ > 不動産会社 > 埼玉県 > 越谷市 > 株式会社中央住宅 ポラスグループ > さいたま市 岩槻区美園東2丁目 戸建て
マイスマ
中古一戸建て
会員の何がお得なの?

さいたま市 岩槻区美園東2丁目 戸建て

モバイル用QRコード

埼玉高速鉄道「浦和美園」駅 徒歩19分

埼玉県さいたま市岩槻区美園東2丁目

5,830万円

物件詳細情報
価格5,830万円その他負担金
交通 (1)埼玉高速鉄道「浦和美園」駅 徒歩19分
所在地埼玉県さいたま市岩槻区美園東2丁目
設備物件の周辺地図を表示しています。建物の位置正確でない場合がございます。・分譲地内ゴミ置き場持分あり地番:13番24 地目:雑種地 地積:3.0? 持分:1/9・敷地の一部は他住戸との協定地で地役権を設定しています。・対象不動産は岩槻南部新和西地区地区計画(A地区)に存します。・インスペクション実施済み・敷地内電柱・支線あり・室内の照明・カーテン・カーテンレール・エアコン2基は現状のまま引き渡し
周辺環境
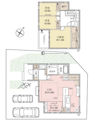
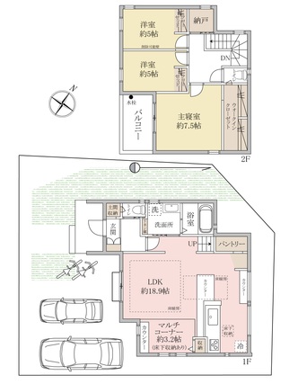
備考都市計画:市街化区域  2023年4月築ポラス施工/3LDK納戸・土間収納・WIC北東角地 道路幅があり、開放感があります
駐車スペース2台 (1台車種制限あり)
間取り3SLDK建物面積98.63m2
土地面積150.09m2私道負担私道負担:無 セットバック:不要
築年月2023年4月建物構造木造2階建
駐車場駐車場:有り/空有接道状況角地 北西側 間口10.3m 公道 幅16.9m 間口1m
土地権利所有権地目宅地
借地権の詳細
用途地域準住居地域採光
建ぺい率70%容積率200%
現況住居中引渡時期
取引形態専任法的規制など
情報更新日2026年2月1日次回更新日2026年2月13日
取引条件有効期限
売主事業主
お問合せ先

株式会社中央住宅 ポラスグループ【宅建業 国土交通大臣(13)第2401号】

〒343-0845 埼玉県越谷市南越谷1-21-2

TEL:048-945-3935

※お問い合わせの際は「マイスマ」を見たとお伝えになるとスムーズです

営業時間:10:00~19:00/定休日:水曜日

条件の近い物件を検索

周辺の物件を地図から探す

テーマ別で物件を探す(さいたま市岩槻区)

周辺の不動産会社

店舗の風景

ファミリー不動産株式…

〒339-0056 埼玉県さいたま市岩槻区加倉1-26-13
画像がありません

有限会社 大和土地建物

〒339-0058 埼玉県さいたま市岩槻区本丸3丁目16-61
Webサイトのプレビュー

株式会社秀和建設

〒339-0057 埼玉県さいたま市岩槻区本町4丁目2-5

物件の周辺情報

岩槻区周辺の施設

Yahoo!

この会社の他の物件

越谷市千間台東2丁目

越谷市千間台東2丁目
中古一戸建

所在地

埼玉県越谷市

価格

2,880万円

最寄り駅

東武伊勢崎・大師線「…

間取り

4LDK

八潮市大字大曽根 中…

八潮市大字大曽根 中古戸建
中古一戸建

所在地

埼玉県八潮市

価格

1,480万円

最寄り駅

つくばエクスプレス「…

間取り

3LDK

越谷市南越谷5丁目 戸…

越谷市南越谷5丁目 戸建て
中古一戸建

所在地

埼玉県越谷市

価格

5,980万円

最寄り駅

東武伊勢崎・大師線「…

間取り

5LDK

さいたま市 緑区大字大…

さいたま市 緑区大字大門 戸建て
中古一戸建

所在地

埼玉県さいたま市緑区

価格

3,480万円

最寄り駅

埼玉高速鉄道「浦和美…

間取り

4LDK

ページの先頭へ