家を買う・借りる・
不動産会社を探すならマイスマ
マイスマ > 中古一戸建て > 埼玉県 > 北葛飾郡松伏町 > 松伏町松伏 戸建
マイスマ > 不動産会社 > 埼玉県 > 越谷市 > 株式会社中央住宅 ポラスグループ > 松伏町松伏 戸建
マイスマ
中古一戸建て
会員の何がお得なの?

松伏町松伏 戸建

モバイル用QRコード

東武伊勢崎・大師線「北越谷」駅からバス20分「十一軒入口」バス停下車 徒歩2分

埼玉県北葛飾郡松伏町松伏

1,280万円

物件詳細情報
価格1,280万円その他負担金
交通 (1)東武伊勢崎・大師線「北越谷」駅からバス20分「十一軒入口」バス停下車 徒歩2分
所在地埼玉県北葛飾郡松伏町松伏
設備・小中学校も1km圏内です。・松伏ニュータウンショッピングセンターまで900mで毎日のお買い物も便利です。
周辺環境松伏小学校 距離:900m/松伏中学校 距離:800m
備考都市計画:市街化区域  南道路に面し日当たり良好な戸建です注文住宅用地としてもご検討下さい
南側にお庭があり、ガーデニングや家庭菜園も楽しめます。
カースペース1台あり。
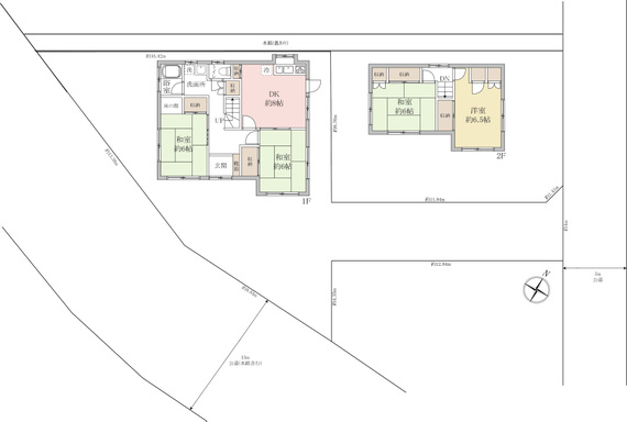
間取り4LDK建物面積83.63m2
土地面積180.04m2私道負担私道負担:無 セットバック:不要
築年月1980年3月建物構造木造2階建
駐車場接道状況ニ方 東側 間口4.0m 公道 幅5.0m 南東側 間口1m 北側 間口5.0m 幅5m 南側 幅22.0m 位置指定:有 間口5m 幅1m
土地権利所有権地目宅地
借地権の詳細
用途地域第一種住居地域採光
建ぺい率70%容積率200%
現況住居中引渡時期
取引形態専任法的規制など
情報更新日2026年1月11日次回更新日2026年1月22日
取引条件有効期限
売主事業主
お問合せ先

株式会社中央住宅 ポラスグループ【宅建業 国土交通大臣(13)第2401号】

〒343-0845 埼玉県越谷市南越谷1-21-2

TEL:048-945-3935

※お問い合わせの際は「マイスマ」を見たとお伝えになるとスムーズです

営業時間:10:00~19:00/定休日:水曜日

条件の近い物件を検索

周辺の物件を地図から探す

テーマ別で物件を探す(北葛飾郡松伏町)

周辺の不動産会社

Webサイトのプレビュー

松井産業(株)松伏支店

〒- 埼玉県北葛飾郡松伏町松伏3212

物件の周辺情報

松伏町周辺の施設

Yahoo!

この会社の他の物件

さいたま市西区西大宮4…

さいたま市西区西大宮4丁目 戸建て
中古一戸建

所在地

埼玉県さいたま市西区

価格

8,400万円

最寄り駅

川越線「西大宮」駅 徒…

間取り

4SLDK

柏市酒井根7丁目 戸…

柏市酒井根7丁目 戸建て
中古一戸建

所在地

千葉県柏市

価格

1,950万円

最寄り駅

東武野田線「増尾」駅 …

間取り

4LDK

松戸市幸谷戸建

松戸市幸谷戸建
中古一戸建

所在地

千葉県松戸市

価格

8,680万円

最寄り駅

千代田・常磐緩行線「…

間取り

6SLDK

草加市青柳8丁目 ポラ…

草加市青柳8丁目 ポラス施工注文住宅
中古一戸建

所在地

埼玉県草加市

価格

3,580万円

最寄り駅

東武伊勢崎・大師線「…

間取り

2LDK

ページの先頭へ