家を買う・借りる・
不動産会社を探すならマイスマ
マイスマ > 中古一戸建て > 埼玉県 > 川口市 > 川口市大字安行 ポラスの価値再生住宅
マイスマ > 不動産会社 > 埼玉県 > 越谷市 > 株式会社中央住宅 ポラスグループ > 川口市大字安行 ポラスの価値再生住宅
マイスマ
中古一戸建て
会員の何がお得なの?

川口市大字安行 ポラスの価値再生住宅

モバイル用QRコード

埼玉高速鉄道「戸塚安行」駅 徒歩8分

埼玉県川口市安行

5,280万円

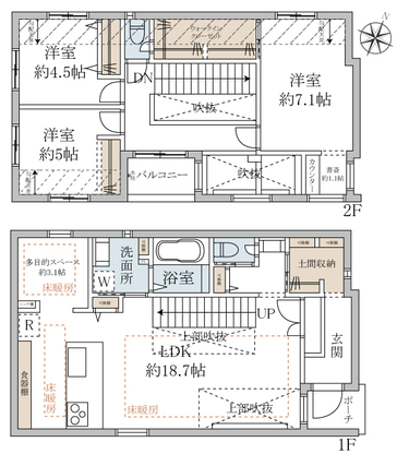
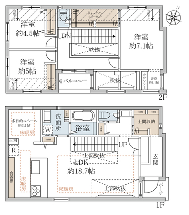
物件詳細情報
価格5,280万円その他負担金
交通 (1)埼玉高速鉄道「戸塚安行」駅 徒歩8分
所在地埼玉県川口市安行
設備売主につき仲介手数料不要玄関脇に土間収納 キッチンに隣接した多目的スペース等収納豊富リビングにエアコンを新規設置60インチの壁掛けテレビを新設リフォーム内容(2025.7月完了)交換…IHコンロ、キッチン水栓張替…クロス(一部)、クッションフロア(一部)他、室内クリーニング従前地:謄本土地面積:170? ゴミ置場持分:5.88?×1/8仮換地:安行藤八土地区画整理事業 面積:131.23? ゴミ置場持分:4.51?  上記土地面積には路地状部分約38.75?(約29.6%)含む景観法・農地法周辺環境・安行東小学校 1300m・安行東中学校 800m・川口安行まりーな保育園 840m・ファミリーマート 川口花山下 190m・フードガーデン 戸塚安行駅店 600m・マミーマート 川口安行店 470m・ドラッグセイムス 川口安行藤八店 470m
周辺環境安行東小学校 距離:1300m/安行東中学校 距離:800m
備考都市計画:市街化区域  ポラスの価値再生住宅令和3年10月築のポラスの注文住宅 カースペース2台駐車可能
リビング上部の開放的な吹き抜けから自然な光が降り注ぎます
猫との暮らしを楽しむ住まい
間取り3SLDK建物面積99.98m2
土地面積131.23m2私道負担私道負担:無 セットバック:不要
築年月2021年10月建物構造木造2階建
駐車場駐車場:有り/空有接道状況一方 東側 間口2.8m 公道 幅6.0m
土地権利所有権地目
借地権の詳細
用途地域第一種低層住居専用地域採光
建ぺい率50%容積率100%
現況空家引渡時期
取引形態売主法的規制など
情報更新日2025年12月14日次回更新日2025年12月26日
取引条件有効期限
売主事業主
お問合せ先

株式会社中央住宅 ポラスグループ【宅建業 国土交通大臣(13)第2401号】

〒343-0845 埼玉県越谷市南越谷1-21-2

TEL:048-945-3935

※お問い合わせの際は「マイスマ」を見たとお伝えになるとスムーズです

営業時間:10:00~19:00/定休日:水曜日

条件の近い物件を検索

周辺の物件を地図から探す

テーマ別で物件を探す(川口市)

周辺の不動産会社

店舗の風景

有限会社ハウス壱番館

〒333-0861 埼玉県川口市柳崎5-9-13 
Webサイトのプレビュー

センチュリー21ベスト…

〒333-0802 埼玉県川口市戸塚東2―11―1
Webサイトのプレビュー

有限会社 花伝舎

〒333-0811 埼玉県川口市戸塚2丁目25-18
Webサイトのプレビュー

株式会社 未来住販

〒333-0842 埼玉県川口市前川4-14-1

物件の周辺情報

川口市周辺の施設

Yahoo!

この会社の他の物件

松戸市二十世紀が丘梨…

松戸市二十世紀が丘梨元町 戸建
中古一戸建

所在地

千葉県松戸市

価格

5,980万円

最寄り駅

常磐線「松戸」駅梨元…

間取り

5SLDK

蕨市中央6丁目 戸建

蕨市中央6丁目 戸建
中古一戸建

所在地

埼玉県蕨市

価格

4,600万円

最寄り駅

京浜東北・根岸線「蕨…

間取り

3LDK

川口市戸塚4丁目 戸建て

川口市戸塚4丁目 戸建て
中古一戸建

所在地

埼玉県川口市

価格

4,280万円

最寄り駅

武蔵野線「東川口」駅 …

間取り

3LDK

さいたま市北区日進町2…

さいたま市北区日進町2丁目 中古戸建
中古一戸建

所在地

埼玉県さいたま市北区

価格

4,980万円

最寄り駅

川越線「日進」駅 徒歩…

間取り

4SLDK

ページの先頭へ