中古一戸建て
会員の何がお得なの?

ポラスの旧分譲住宅 三郷市戸ケ崎1丁目 マインドスクエア
つくばエクスプレス「三郷中央」駅 徒歩27分 / つくばエクスプレス「三郷中央」駅からバス9分「栄5丁目」バス停下車 徒歩4分
埼玉県三郷市戸ケ崎1丁目
2,680万円
物件詳細情報
| 価格 | 2,680万円 | その他負担金 |
| 交通 | (1)つくばエクスプレス「三郷中央」駅 徒歩27分(2)つくばエクスプレス「三郷中央」駅からバス9分「栄5丁目」バス停下車 徒歩4分 | ||
| 所在地 | 埼玉県三郷市戸ケ崎1丁目 | ||
| 設備 | リフォーム履歴2022年2月:キッチンレンジフード、ガスコンロ交換 2023年7月:1・2階トイレ、給湯器交換Life Information・戸ヶ崎小学校:650m(徒歩約9分)・栄中学校:1200m(徒歩約15分)・セブンイレブン三郷戸ヶ崎店:250m(徒歩約4分)・ファミリーマート三郷戸ヶ崎店:500m(徒歩約7分)・ドラッグセイムス三郷戸ヶ崎1丁目店:500m(徒歩約7分)・ダイレックス戸ヶ崎店:950m(徒歩約12分)・いなげや三郷戸ヶ崎店:1200m(徒歩約15分) | ||
| 周辺環境 | 戸ヶ崎小学校 距離:650m/栄中学校 距離:1200m | ||
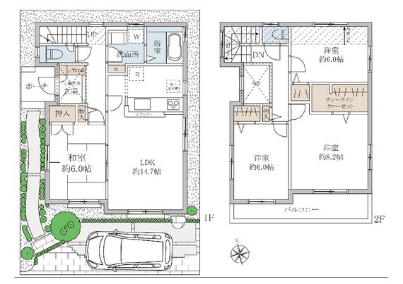
| 備考 | 都市計画:市街化区域 ウォークインクローゼット ポラスの仲介ポラスの旧分譲住宅 全20棟の街並み 駐車スペース1台分 南道路に面し陽当たり良好 4LDKウォークインクローゼット 1階に独立和室あり 全居室6畳以上・収納完備 | ||
| 間取り | 4LDK | 建物面積 | 101.84m2 |
| 土地面積 | 101.42m2 | 私道負担 | 私道負担:無 セットバック:不要 |
| 築年月 | 2007年2月 | 建物構造 | 木造2階建 |
| 駐車場 | 駐車場:有り/空有 | 接道状況 | 一方 南側 間口8.2m 公道 幅4.0m |
| 土地権利 | 所有権 | 地目 | 宅地 |
| 借地権の詳細 | |||
| 用途地域 | 第一種中高層住居専用地域 | 採光 | 南 |
| 建ぺい率 | 60% | 容積率 | 160% |
| 現況 | 住居中 | 引渡時期 | 2026年4月 |
| 取引形態 | 専任 | 法的規制など | |
| 情報更新日 | 2026年2月22日 | 次回更新日 | 2026年3月6日 |
| 取引条件有効期限 | |||
| 売主 | 事業主 | ||
| お問合せ先 |
株式会社中央住宅 ポラスグループ【宅建業 国土交通大臣(13)第2401号】 〒343-0845 埼玉県越谷市南越谷1-21-2 TEL:048-945-3935 ※お問い合わせの際は「マイスマ」を見たとお伝えになるとスムーズです 営業時間:10:00~19:00/定休日:水曜日 | ||
条件の近い物件を検索
テーマ別で物件を探す(三郷市)
周辺の不動産会社
|
|
有限会社 松栄住宅 |
| 〒341-0034 埼玉県三郷市新和1丁目11番地 |
|
|
株式会社 ホームネット |
| 〒341-0038 埼玉県三郷市中央5-31-19 |
|
|
松井産業(株)三郷中央… |
| 〒341-0003 埼玉県三郷市彦成1-1 |
|
|
株式会社 三郷地所 |
| 〒341-0018 埼玉県三郷市早稲田2―25―3 |