家を買う・借りる・
不動産会社を探すならマイスマ
マイスマ > 中古一戸建て > 埼玉県 > 草加市 > 草加市原町3丁目 中古戸建
マイスマ > 不動産会社 > 埼玉県 > 越谷市 > 株式会社中央住宅 ポラスグループ > 草加市原町3丁目 中古戸建
マイスマ
中古一戸建て
会員の何がお得なの?

草加市原町3丁目 中古戸建

モバイル用QRコード

東武伊勢崎・大師線「新田」駅からバス12分「原町3丁目」バス停下車 徒歩7分

埼玉県草加市原町3丁目

4,480万円

物件詳細情報
価格4,480万円その他負担金
交通 (1)東武伊勢崎・大師線「新田」駅からバス12分「原町3丁目」バス停下車 徒歩7分
所在地埼玉県草加市原町3丁目
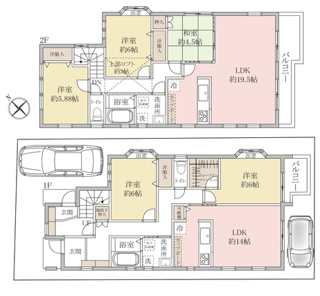
設備2F:LDK19.5帖続き間和室4.5畳のゆったりスペース、6帖洋室はロフトあり1F・2Fともに造り付のカップボードありカースペース2台分ございます(車種による)1階:2LDK 2階:3LDK周辺環境・清門小学校 850m・新栄中学校 1200m・けやきの森保育園 800m・二宮病院 1600m・ローソン川口安行吉蔵 140m・ユニディ草加新栄店 1400m・ヤオコー草加原町 600m物件の周辺地図を表示しています。建物の位置正確でない場合がございます。
周辺環境清門小学校 距離:850m/新栄中学校 距離:1200m
備考都市計画:市街化区域 2LDK+3LDK ポラスの仲介独立型2世帯住宅(2LDK3LDK)・玄関も別々です
1F:6帖洋室にはWIC、バルコニー付き、広さがありゆったりした玄関
間取り5LDK建物面積157.33m2
土地面積138.21m2私道負担私道負担:無 セットバック:不要
築年月2011年3月建物構造木造2階建
駐車場駐車場:有り/空有接道状況ニ方 北西側 間口8.0m 公道 幅6.0m 北西側 間口1m 北側 間口6.0m 幅4m 南西側 幅8.0m 位置指定:有 間口4m 幅1m
土地権利所有権地目宅地
借地権の詳細
用途地域第二種住居地域採光南東
建ぺい率60%容積率200%
現況住居中引渡時期
取引形態一般法的規制など
情報更新日2025年12月14日次回更新日2025年12月26日
取引条件有効期限
売主事業主
お問合せ先

株式会社中央住宅 ポラスグループ【宅建業 国土交通大臣(13)第2401号】

〒343-0845 埼玉県越谷市南越谷1-21-2

TEL:048-945-3935

※お問い合わせの際は「マイスマ」を見たとお伝えになるとスムーズです

営業時間:10:00~19:00/定休日:水曜日

条件の近い物件を検索

周辺の物件を地図から探す

テーマ別で物件を探す(草加市)

周辺の不動産会社

Webサイトのプレビュー

株式会社なまず屋不動…

〒340-0012 埼玉県草加市神明2丁目4番8号
店舗の風景

大恵不動産株式会社

〒340-0034 埼玉県草加市氷川町2150-9
Webサイトのプレビュー

センチュリー21 オガ…

〒340-0011 埼玉県草加市栄町3丁目4-2
Webサイトのプレビュー

株式会社 大地コーポ…

〒340-0034 埼玉県草加市氷川町2129―4 フォトアークビル…

物件の周辺情報

草加市周辺の施設

Yahoo!

この会社の他の物件

柏市西原3丁目 戸建

柏市西原3丁目   戸建
中古一戸建

所在地

千葉県柏市

価格

6,280万円

最寄り駅

東武野田線「江戸川台…

間取り

3SLDK

新座市新座2丁目

新座市新座2丁目
中古一戸建

所在地

埼玉県新座市

価格

2,500万円

最寄り駅

武蔵野線「新座」駅 徒…

間取り

5LDK

三郷市泉1丁目 戸建て

三郷市泉1丁目 戸建て
中古一戸建

所在地

埼玉県三郷市

価格

4,580万円

最寄り駅

武蔵野線「新三郷」駅 …

間取り

4LDK

我孫子市湖北台5丁目 …

我孫子市湖北台5丁目 戸建て
中古一戸建

所在地

千葉県我孫子市

価格

1,850万円

最寄り駅

成田線「湖北」駅 徒歩…

間取り

4LDK

ページの先頭へ