家を買う・借りる・
不動産会社を探すならマイスマ
マイスマ > 中古一戸建て > 千葉県 > 柏市 > 柏市南増尾4丁目 戸建て
マイスマ > 不動産会社 > 埼玉県 > 越谷市 > 株式会社中央住宅 ポラスグループ > 柏市南増尾4丁目 戸建て
マイスマ
中古一戸建て
会員の何がお得なの?

柏市南増尾4丁目 戸建て

モバイル用QRコード

千代田・常磐緩行線「南柏」駅からバス18分「南増尾」バス停下車 徒歩3分

千葉県柏市南増尾4丁目

3,680万円

物件詳細情報
価格3,680万円その他負担金
交通 (1)千代田・常磐緩行線「南柏」駅からバス18分「南増尾」バス停下車 徒歩3分
所在地千葉県柏市南増尾4丁目
設備物件の周辺地図を表示しています。建物の位置正確でない場合がございます。法令上の制限/高度地区・建築基準法第22条区域カースペース3台(2台縦列は車種によります)
周辺環境土南部小学校 距離:1500m/南部中学校 距離:600m
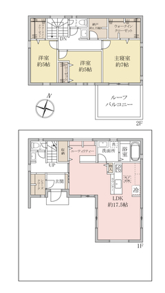
備考都市計画:市街化区域  2024年築デザイン性に溢れる造りカースペース3台
LDK17.5帖ユーティリテイで広々
南向きで陽当たり良好
シューズクローク・納戸・ウォークインクローゼット2ケ所で収納豊富
間取り3SLDK建物面積103.5m2
土地面積133m2私道負担私道負担:無 セットバック:不要
築年月2024年2月建物構造木造2階建
駐車場接道状況一方 南側 間口10.8m 私道 幅4.0m
土地権利所有権地目宅地
借地権の詳細
用途地域第一種住居地域採光南東
建ぺい率60%容積率200%
現況空家引渡時期
取引形態専任法的規制など
情報更新日2026年1月11日次回更新日2026年1月22日
取引条件有効期限
売主事業主
お問合せ先

株式会社中央住宅 ポラスグループ【宅建業 国土交通大臣(13)第2401号】

〒343-0845 埼玉県越谷市南越谷1-21-2

TEL:048-945-3935

※お問い合わせの際は「マイスマ」を見たとお伝えになるとスムーズです

営業時間:10:00~19:00/定休日:水曜日

条件の近い物件を検索

周辺の物件を地図から探す

テーマ別で物件を探す(柏市)

周辺の不動産会社

店舗の風景

WAVE住宅販売株式会社

〒277-0832 千葉県柏市北柏1丁目1-1
店舗の風景

株式会社イシンホーム…

〒277-0804 千葉県柏市※本社住所※東京都江戸川区中央4-16
Webサイトのプレビュー

柏ファミリー住宅株式…

〒277-0022 千葉県柏市泉町2―6
店舗の風景

小倉建設株式会社

〒277-0871 千葉県柏市若柴162-1

物件の周辺情報

柏市周辺の施設

Yahoo!

この会社の他の物件

柏市西町 戸建て

柏市西町 戸建て
中古一戸建

所在地

千葉県柏市

価格

2,990万円

最寄り駅

常磐線「柏」駅 徒歩19分

間取り

2SLDK

さいたま市桜区田島4丁…

さいたま市桜区田島4丁目 戸建
中古一戸建

所在地

埼玉県さいたま市桜区

価格

4,780万円

最寄り駅

武蔵野線「西浦和」駅 …

間取り

4LDK

白井市西白井3丁目 戸…

白井市西白井3丁目 戸建て
中古一戸建

所在地

千葉県白井市

価格

2,490万円

最寄り駅

北総鉄道「西白井」駅…

間取り

3LDK

流山市古間木 戸建

流山市古間木   戸建
中古一戸建

所在地

千葉県流山市

価格

6,480万円

最寄り駅

つくばエクスプレス「…

間取り

3LDK

ページの先頭へ