家を買う・借りる・
不動産会社を探すならマイスマ
マイスマ > 中古一戸建て > 埼玉県 > 吉川市 > 吉川市吉川2丁目・中古戸建
マイスマ > 不動産会社 > 埼玉県 > 越谷市 > 株式会社中央住宅 ポラスグループ > 吉川市吉川2丁目・中古戸建
マイスマ
中古一戸建て
会員の何がお得なの?

吉川市吉川2丁目・中古戸建

モバイル用QRコード

武蔵野線「吉川」駅 徒歩24分

埼玉県吉川市吉川2丁目

2,480万円

物件詳細情報
価格2,480万円その他負担金
交通 (1)武蔵野線「吉川」駅 徒歩24分
所在地埼玉県吉川市吉川2丁目
設備関小学校570m/中央中学校1400mリフォームのご相談も承ります地区計画区域建築基準法第22条区域ゴミ置場持分あり(3.00平米×1/10)東×北×西の3方角地の開放的な立地陽当たり・通風良好です小屋裏収納、床下収納、シューズクローク等、収納豊富な間取りです物件の詳細は担当のいこたまでお気軽にお問い合わせください
周辺環境吉川市立関小学校 距離:570m/吉川市立中央中学校 距離:1400m
備考都市計画:市街化区域  ポラスの仲介三方角地の開放的な立地
陽当り・通風良好です
カースペース2台分(1台は軽自動車)
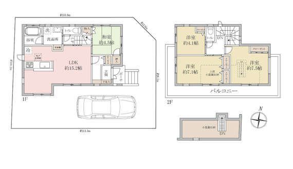
平成22年築の4LDK小屋裏収納
全居室2面採光収納つき
リビング階段採用
間取り4LDK建物面積92.74m2
土地面積132.96m2私道負担私道負担:無 セットバック:不要
築年月2010年5月建物構造木造2階建
駐車場駐車場:有り/空有接道状況三方 東側 間口8.1m 公道 幅5.0m 北西側 間口1m 位置指定:有 北側 間口5.0m 幅1m
土地権利所有権地目宅地
借地権の詳細
用途地域第一種低層住居専用地域採光
建ぺい率60%容積率80%
現況住居中引渡時期
取引形態専任法的規制など
情報更新日2026年4月26日次回更新日2026年5月8日
取引条件有効期限
売主事業主
お問合せ先

株式会社中央住宅 ポラスグループ【宅建業 国土交通大臣(13)第2401号】

〒343-0845 埼玉県越谷市南越谷1-21-2

TEL:048-945-3935

※お問い合わせの際は「マイスマ」を見たとお伝えになるとスムーズです

営業時間:10:00~19:00/定休日:水曜日

条件の近い物件を検索

周辺の物件を地図から探す

テーマ別で物件を探す(吉川市)

周辺の不動産会社

店舗の風景

三省インテリジェント…

〒342-0045 埼玉県吉川市木売2-3-8
Webサイトのプレビュー

松井産業株式会社 吉…

〒342-0045 埼玉県吉川市木売1-4-11
Webサイトのプレビュー

ジビキ建設株式会社

〒342-0041 埼玉県吉川市保1丁目14番15号
Webサイトのプレビュー

日本住宅センター有限…

〒342-0035 埼玉県吉川市高久2丁目1番地2

物件の周辺情報

吉川市周辺の施設

Yahoo!

この会社の他の物件

松伏町ゆめみ野東3丁目…

松伏町ゆめみ野東3丁目 戸建
中古一戸建

所在地

埼玉県北葛飾郡松伏町

価格

1,980万円

最寄り駅

東武伊勢崎・大師線「…

間取り

4LDK

マンション第八松戸

マンション第八松戸
中古一戸建

所在地

千葉県松戸市

価格

1,890万円

最寄り駅

千代田・常磐緩行線「…

間取り

4SLDK

さいたま市岩槻区城南1…

さいたま市岩槻区城南1丁目 戸建
中古一戸建

所在地

埼玉県さいたま市岩槻区

価格

5,800万円

最寄り駅

東武野田線「岩槻」駅 …

間取り

5SLDK

松戸市八ヶ崎4丁目 戸建

松戸市八ヶ崎4丁目 戸建
中古一戸建

所在地

千葉県松戸市

価格

680万円

最寄り駅

新京成電鉄「常盤平」…

間取り

3LDK

ページの先頭へ