中古一戸建て
会員の何がお得なの?

さいたま市中央区八王子5丁目 戸建
埼京線「与野本町」駅 徒歩30分 / 埼京線「北与野」駅からバス18分「白鍬」バス停下車 徒歩3分
埼玉県さいたま市中央区八王子5丁目
3,480万円
物件詳細情報
| 価格 | 3,480万円 | その他負担金 |
| 交通 | (1)埼京線「与野本町」駅 徒歩30分(2)埼京線「北与野」駅からバス18分「白鍬」バス停下車 徒歩3分 | ||
| 所在地 | 埼玉県さいたま市中央区八王子5丁目 | ||
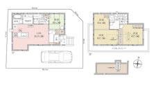
| 設備 | 3LDK納戸 鉄骨造3階建ての注文住宅ゆったりとした仕様の住まい明るい2階LDK 家事スペースを備えた、約20帖の団欒空間全居室5.7帖以上 光と風を採り込む2面採光豊富な収納 大容量の納戸・ウォークインクローゼット収納付きライブラリースペース 家族が共有し過ごせる3階ホール部分、書斎・PC作業・趣味スペース等多目的な使用が可能4m私道に接道 住民以外の立入りが少ない立地暮らしやすい住環境徒歩圏内に生活便利施設が点在 徒歩2分にスーパー 食品・備品等の購入がらくらく 与野西北小学校・八王子中学校まで徒歩14分以内最寄りバス停徒歩3分 与野本町駅迄自転車利用で12分(実測)表示地図は物件の周辺地図を表示しています。建物の位置は正確でない場合がございます。 | ||
| 周辺環境 | 与野西北小学校 距離:1100m/八王子中学校 距離:550m | ||
| 備考 | 都市計画:市街化区域 教育施設、スーパーやコンビニ等の商業施設、公園等が徒歩圏内に揃い暮らしやすい住環境です2017年4月築、浴室のほか、シャワー室を備えています。お子様の多いご家庭におすすめですぜひご検討下さい | ||
| 間取り | 3SLDK | 建物面積 | 133.15m2 |
| 土地面積 | 84.3m2 | 私道負担 | 私道負担:無 セットバック:不要 |
| 築年月 | 2017年4月 | 建物構造 | 鉄骨造3階建 |
| 駐車場 | 接道状況 | 一方 南西側 間口2.0m 私道 幅4.0m | |
| 土地権利 | 所有権 | 地目 | 宅地 |
| 借地権の詳細 | |||
| 用途地域 | 第一種中高層住居専用地域 | 採光 | 南 |
| 建ぺい率 | 60% | 容積率 | 160% |
| 現況 | 住居中 | 引渡時期 | |
| 取引形態 | 専任 | 法的規制など | |
| 情報更新日 | 2026年5月16日 | 次回更新日 | 2026年5月28日 |
| 取引条件有効期限 | |||
| 売主 | 事業主 | ||
| お問合せ先 |
株式会社中央住宅 ポラスグループ【宅建業 国土交通大臣(13)第2401号】 〒343-0845 埼玉県越谷市南越谷1-21-2 TEL:048-945-3935 ※お問い合わせの際は「マイスマ」を見たとお伝えになるとスムーズです 営業時間:10:00~19:00/定休日:水曜日 | ||
条件の近い物件を検索
テーマ別で物件を探す(さいたま市中央区)
周辺の不動産会社
|
|
株式会社リプロ |
| 〒338-0001 埼玉県さいたま市中央区上落合2丁目4番1号 |
|
|
パーソナルスタイル … |
| 〒338-0003 埼玉県さいたま市中央区本町東6―5―23―102 |
|
|
株式会社 アトラス住販 |
| 〒338-0001 埼玉県さいたま市中央区上落合6―18―21 |
|
|
株式会社 アカデミッ… |
| 〒338-0002 埼玉県さいたま市中央区下落合4―10―12 |