家を買う・借りる・
不動産会社を探すならマイスマ
マイスマ > 新築一戸建て > 埼玉県 > さいたま市北区 > さいたま市北区植竹町1丁目 新築戸建
マイスマ > 不動産会社 > 埼玉県 > 越谷市 > 株式会社中央住宅 ポラスグループ > さいたま市北区植竹町1丁目 新築戸建
マイスマ
新築一戸建て
会員の何がお得なの?

さいたま市北区植竹町1丁目 新築戸建

モバイル用QRコード

東武野田線「北大宮」駅 徒歩15分 / 東北本線「土呂」駅 徒歩15分

埼玉県さいたま市北区植竹町1丁目

6,798万円

物件詳細情報

全体情報

所在地 埼玉県さいたま市北区植竹町1丁目
交通 (1)東武野田線「北大宮」駅 徒歩15分
(2)東北本線「土呂」駅 徒歩15分
総戸数1戸完成予定日2026年1月(完成予定)
建物構造木造2階建建ぺい率・容積率60%・160%
土地の権利所有権用途地域第一種住居地域
借地権の詳細
地目宅地法的規制など
取引態様仲介駐車場駐車場:有り/空有
売主施工会社
建築確認番号第25UDI1W建06830号私道負担私道負担:無 セットバック:不要
その他費用
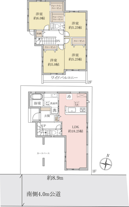
設備2026年1月下旬完成予定の新築戸建1階が家族空間、2階がプライベート空間の空間分けされた住宅でございます。南道路のため、陽当り・風通しがよく、快適な住環境を叶えてくれます。便利な設備が充実システムキッチン・室内物干しウォークインクローゼット・床下収納カースペースなど充実した周辺環境3駅3路線利用できる便利な立地にございます教育機関や商業施設は徒歩15分圏内に充実しており、快適な新生活をお送りいただくことができます現地や建築プランのご案内できますので、ぜひお問い合わせください皆さまからのお問合せを心よりお待ちしております。
備考都市計画:市街化区域  2026年1月下旬完成予定4LDK・2ウォークインクローゼットのゆったりとした住まいが北区植竹町1丁目に誕生します現地や建築プランご案内できますので、ぜひお問い合わせください。

販売概要

販売価格6,798万円最多価格帯
建物面積112.19m2土地面積100.99m2
間取り4LDK引渡時期2026年2月
現況未完成
採光
周辺環境植竹小学校 距離:600m/植竹中学校 距離:1200m
情報更新日2025年12月14日次回更新日2025年12月26日
取引条件有効期限
販売スケジュール販売戸数/総戸数1戸/1戸
情報提供元

名称:株式会社中央住宅 ポラスグループ【宅建業 国土交通大臣(13)第2401号】

住所:埼玉県越谷市南越谷1-21-2

電話:048-945-3935

※お問い合わせの際は「マイスマ」を見たとお伝えになるとスムーズです

モデルルーム情報

条件の近い物件を検索

周辺の物件を地図から探す

テーマ別で物件を探す(さいたま市北区)

周辺の不動産会社

店舗の風景

株式会社MAXSハウジング

〒331-0812 埼玉県さいたま市北区宮原町3丁目392-3
店舗の風景

有限会社ヒロックス 大…

〒331-0812 埼玉県さいたま市北区宮原町3丁目226-3
店舗の風景

有限会社インペリアル…

〒331-0812 埼玉県さいたま市北区宮原町3-263
店舗の風景

株式会社 リアルさい…

〒331-0804 埼玉県さいたま市北区土呂町2-10-2

物件の周辺情報

北区周辺の施設

Yahoo!

この会社の他の物件

ポラスの分譲B/N戸田公…

ポラスの分譲B/N戸田公園 GXgrade
新築一戸建

所在地

埼玉県戸田市

価格

5,880万円

最寄り駅

埼京線「戸田公園」駅 …

間取り

4LDK

ポラスの分譲OMOIS浦和…

ポラスの分譲OMOIS浦和 詠律の邸
新築一戸建

所在地

埼玉県さいたま市南区

価格

5,880万円

最寄り駅

高崎線「浦和」駅 徒歩…

間取り

4SLDK

ポラスの分譲OMOIS東久…

ポラスの分譲OMOIS東久留米
新築一戸建

所在地

東京都東久留米市

価格

5,180万円

最寄り駅

西武池袋線「清瀬」駅 …

間取り

3LDK

足立区青井4丁目 新…

足立区青井4丁目 新築一戸建て
新築一戸建

所在地

東京都足立区

価格

3,980万円

最寄り駅

つくばエクスプレス「…

間取り

3LDK

ページの先頭へ