新築一戸建て
会員の何がお得なの?

OMOIS清瀬・新座3rd 悠久の邸
武蔵野線「新座」駅 徒歩18分 / 西武池袋線「清瀬」駅からバス16分「旭が丘団地」バス停下車 徒歩16分
東京都清瀬市下宿3丁目
5,580万円
物件詳細情報
全体情報
| 所在地 | 東京都清瀬市下宿3丁目 | ||
| 交通 | (1)武蔵野線「新座」駅 徒歩18分(2)西武池袋線「清瀬」駅からバス16分「旭が丘団地」バス停下車 徒歩16分 | ||
| 総戸数 | 3戸 | 完成予定日 | 2025年8月 |
| 建物構造 | 木造2階建 | 建ぺい率・容積率 | 50%・100% |
| 土地の権利 | 所有権 | 用途地域 | 第一種低層住居専用地域 |
| 借地権の詳細 | |||
| 地目 | 宅地 | 法的規制など | |
| 取引態様 | 代理 | 駐車場 | 駐車場:有り/空有 |
| 売主 | 施工会社 | ||
| 建築確認番号 | 第SJK-KX245663850号 | 私道負担 | 私道負担:無 セットバック:不要 |
| その他費用 | |||
| 設備 | 物件名/OMOIS清瀬・新座3rd 悠久の邸道路/5.0m 公道(アスファルト舗装)総戸数/3戸販売戸数/1戸販売価格帯/5580万円(税込)土地面積/138.94?建物面積/103.92?設備/公営水道、東京電力・他、都市ガス、本下水、カースペース、外構、植栽その他付帯設備一式構造/木造2階建(在来工法)売主名/ポラスタウン開発(株)物件の周辺地図を表示しています。建物の位置正確でない場合がございます。 | ||
| 備考 | 都市計画:市街化区域 ポラスの分譲住宅近隣モデルハウスもご案内いたします JR武蔵野線(むさしの号)「新座」駅徒歩18分/自転車8分(実測) 高いデザイン性と邸別設計の魅力が共演する全3邸 | ||
販売概要
| 販売価格 | 5,580万円 | 最多価格帯 | |
| 建物面積 | 103.92m2 | 土地面積 | 138.94m2 |
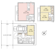
| 間取り | 3LDK | 引渡時期 | 即引渡し可 |
| 現況 | 空家 | ||
| 採光 | 南 | ||
| 周辺環境 | 清瀬市立清明小学校 距離:1010m/清瀬第三中学校 距離:1760m | ||
| 情報更新日 | 2025年11月18日 | 次回更新日 | 2025年11月30日 |
| 取引条件有効期限 | |||
| 販売スケジュール | 販売戸数/総戸数 | 1戸/3戸 | |
| 情報提供元 |
名称:株式会社中央住宅 ポラスグループ【宅建業 国土交通大臣(13)第2401号】 住所:埼玉県越谷市南越谷1-21-2 電話:048-945-3935 ※お問い合わせの際は「マイスマ」を見たとお伝えになるとスムーズです | ||
| モデルルーム情報 | |||
条件の近い物件を検索
テーマ別で物件を探す(清瀬市)
周辺の不動産会社
|
|
センチュリー21エステル |
| 〒204-0022 東京都清瀬市松山1丁目13-2 |
|
|
みずほ信不動産販売株… |
| 〒204-0021 東京都清瀬市元町1丁目4-5 西友清瀬店4階 |