家を買う・借りる・
不動産会社を探すならマイスマ
マイスマ > 新築一戸建て > 埼玉県 > 草加市 > リゾーム草加
マイスマ > 不動産会社 > 埼玉県 > 越谷市 > 株式会社中央住宅 ポラスグループ > リゾーム草加
マイスマ
新築一戸建て
会員の何がお得なの?

リゾーム草加

モバイル用QRコード

東武伊勢崎・大師線「草加」駅 徒歩13分 / 東武伊勢崎・大師線「谷塚」駅 徒歩16分

埼玉県草加市吉町3丁目88番7

5,990万円

物件詳細情報

全体情報

所在地 埼玉県草加市吉町3丁目88番7
交通 (1)東武伊勢崎・大師線「草加」駅 徒歩13分
(2)東武伊勢崎・大師線「谷塚」駅 徒歩16分
総戸数3戸完成予定日2026年1月(完成予定)
建物構造木造2階建建ぺい率・容積率60%・200%
土地の権利所有権用途地域第二種中高層住居専用地域
借地権の詳細
地目宅地法的規制など
取引態様売主駐車場駐車場:有り/空有
売主施工会社
建築確認番号第SJK-KX255617400号私道負担私道負担:無 セットバック:不要
その他費用
設備ポラス分譲住宅駅徒歩13分土地110m2超2台車庫乾太くん東武スカイツリーライン急行・準急停車駅「草加」駅徒歩13分全邸敷地面積110m2超2台カースペース個性豊かな3スタイルの邸別設計ガス衣類乾燥機「乾太くん」ウルトラファインバブル搭載「ECO ONE X5」抗菌・抗ウイルス加工が施された「銘樹モクトーン」3つの色温度が楽しめる「よくばりダウンライト」リビング2.7Mハイシーリング、2.2Mハイサッシ地震・火災に強い「2×4工法」「耐震等級3」「省令準耐火構造」物件の周辺地図を表示しています。建物の位置は正確でない場合がございます。図面と現況に相違がある場合は現況優先と致します。物件の詳細については、担当こいけまでお気軽にご連絡ください。
備考都市計画:市街化区域  ポラスの分譲地~隣地モデルハウス見学予約受付中~東武伊勢崎線「草加」駅徒歩13分小中学校徒歩15分圏内DEN・土間収納・パントリー・二台カースペースあり先着順申込受付中です。

販売概要

販売価格5,990万円最多価格帯
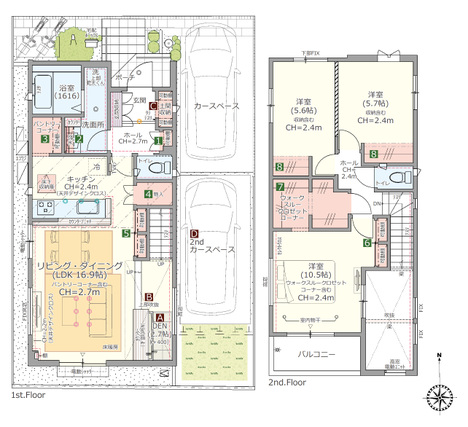
建物面積94.18m2土地面積110.15m2
間取り3LDK引渡時期2026年2月
現況未完成
採光
周辺環境高砂小学校 距離:470m/瀬崎中学校 距離:1060m
情報更新日2025年11月8日次回更新日2025年11月20日
取引条件有効期限
販売スケジュール販売戸数/総戸数1戸/3戸
情報提供元

名称:株式会社中央住宅 ポラスグループ【宅建業 国土交通大臣(13)第2401号】

住所:埼玉県越谷市南越谷1-21-2

電話:048-945-3935

※お問い合わせの際は「マイスマ」を見たとお伝えになるとスムーズです

モデルルーム情報

条件の近い物件を検索

周辺の物件を地図から探す

テーマ別で物件を探す(草加市)

周辺の不動産会社

Webサイトのプレビュー

株式会社なまず屋不動…

〒340-0012 埼玉県草加市神明2丁目4番8号
Webサイトのプレビュー

センチュリー21 オガ…

〒340-0011 埼玉県草加市栄町3丁目4-2
店舗の風景

大恵不動産株式会社

〒340-0034 埼玉県草加市氷川町2150-9
Webサイトのプレビュー

株式会社良質マンショ…

〒340-0013 埼玉県草加市松江1丁目25-13 サンパティー…

物件の周辺情報

草加市周辺の施設

Yahoo!

この会社の他の物件

足立区古千谷本町3丁…

足立区古千谷本町3丁目 戸建て
新築一戸建

所在地

東京都足立区

価格

4,198万円

最寄り駅

日暮里・舎人ライナー…

間取り

3LDK

ポラスの分譲 KIZUKI…

ポラスの分譲 KIZUKIの家 与野本町
新築一戸建

所在地

埼玉県さいたま市中央区

価格

5,580万円

最寄り駅

埼京線「与野本町」駅 …

間取り

4LDK

ポラスの分譲 MOIS南…

ポラスの分譲 MOIS南与野
新築一戸建

所在地

埼玉県さいたま市桜区

価格

4,680万円

最寄り駅

埼京線「南与野」駅 徒…

間取り

3LDK

ポラスの分譲ブリスト…

ポラスの分譲ブリスト与野本町 ノーブルストーン
新築一戸建

所在地

埼玉県さいたま市中央区

価格

5,390万円

最寄り駅

埼京線「与野本町」駅 …

間取り

3LDK

ページの先頭へ