家を買う・借りる・
不動産会社を探すならマイスマ
マイスマ > 中古一戸建て > 千葉県 > 野田市 > 野田市光葉町2丁目 戸建
マイスマ > 不動産会社 > 埼玉県 > 越谷市 > 株式会社中央住宅 ポラスグループ > 野田市光葉町2丁目 戸建
マイスマ
中古一戸建て
会員の何がお得なの?

野田市光葉町2丁目 戸建

モバイル用QRコード

東武野田線「七光台」駅 徒歩12分

千葉県野田市光葉町2丁目

2,280万円

物件詳細情報
価格2,280万円その他負担金
交通 (1)東武野田線「七光台」駅 徒歩12分
所在地千葉県野田市光葉町2丁目
設備~ポラスの大型旧分譲地内区画の整った閑静な住宅街~・東武野田線「七光台」駅徒歩12分・七光台駅までは歩道が整備された安心な住宅街・南向きで広々したLDKは日当たり良好・多目的に使える続き間の和室がある住まい・家族が集うリビングには天然石を使用したアクセントウォールあり・勝手口付き広々キッチン・周辺には大型スーパーも充実・全居室6帖以上のゆったりとした間取資料には掲載していない情報が現地にはたくさんあります。是非一度、現地をご確認ください。
周辺環境北部小学校 距離:1400m/北部中学校 距離:1800m
備考都市計画:市街化区域 +ウォークインクローゼット ポラスの大型旧分譲地内。土地面積257.43平米(77.87坪)の広々した敷地に南向きに建築された陽当り良好なお住まいです。ご家族の思い出を育む、用途多彩な広々敷地と建物をご覧ください。
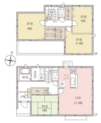
間取り4LDK建物面積109.3m2
土地面積257.43m2私道負担私道負担:無 セットバック:不要
築年月2011年2月建物構造木造2階建
駐車場駐車場:有り/空有接道状況ニ方 西側 間口3.0m 公道 幅9.0m 東側 間口1m 北側 間口9.0m 幅3m 幅14.0m 位置指定:有 間口3m 幅1m
土地権利所有権地目宅地
借地権の詳細
用途地域第一種低層住居専用地域採光
建ぺい率50%容積率100%
現況空家引渡時期
取引形態専任法的規制など
情報更新日2025年12月13日次回更新日2025年12月24日
取引条件有効期限
売主事業主
お問合せ先

株式会社中央住宅 ポラスグループ【宅建業 国土交通大臣(13)第2401号】

〒343-0845 埼玉県越谷市南越谷1-21-2

TEL:048-945-3935

※お問い合わせの際は「マイスマ」を見たとお伝えになるとスムーズです

営業時間:10:00~19:00/定休日:水曜日

条件の近い物件を検索

周辺の物件を地図から探す

テーマ別で物件を探す(野田市)

周辺の不動産会社

Webサイトのプレビュー

(株)グッドリビング

〒278-0026 千葉県野田市花井1丁目19-21
Webサイトのプレビュー

清水住宅 株式会社

〒278-0043 千葉県野田市清水408
Webサイトのプレビュー

有限会社 オカダランド

〒278-0051 千葉県野田市七光台96―1

物件の周辺情報

野田市周辺の施設

Yahoo!

この会社の他の物件

ポラスの旧分譲住宅 …

ポラスの旧分譲住宅 さいたま市緑区中尾
中古一戸建

所在地

埼玉県さいたま市緑区

価格

5,080万円

最寄り駅

京浜東北・根岸線「浦…

間取り

2LDK

草加市吉町四丁目

草加市吉町四丁目
中古一戸建

所在地

埼玉県草加市

価格

3,980万円

最寄り駅

東武伊勢崎・大師線「…

間取り

4LDK

越谷市東越谷9丁目 戸建

越谷市東越谷9丁目 戸建
中古一戸建

所在地

埼玉県越谷市

価格

2,399万円

最寄り駅

東武伊勢崎・大師線「…

間取り

3LDK

越谷市大字西新井

越谷市大字西新井
中古一戸建

所在地

埼玉県越谷市

価格

3,480万円

最寄り駅

東武伊勢崎・大師線「…

間取り

3LDK

ページの先頭へ