新築一戸建て
会員の何がお得なの?

足立区古千谷本町3丁目 戸建て
日暮里・舎人ライナー「舎人」駅 徒歩13分 / 東武伊勢崎・大師線「竹ノ塚」駅からバス13分「古千谷」バス停下車 徒歩5分
東京都足立区古千谷本町3丁目
4,198万円
物件詳細情報
全体情報
| 所在地 | 東京都足立区古千谷本町3丁目 | ||
| 交通 | (1)日暮里・舎人ライナー「舎人」駅 徒歩13分(2)東武伊勢崎・大師線「竹ノ塚」駅からバス13分「古千谷」バス停下車 徒歩5分 | ||
| 総戸数 | 1戸 | 完成予定日 | 2026年1月(完成予定) |
| 建物構造 | 木造3階建 | 建ぺい率・容積率 | 40%・150% |
| 土地の権利 | 所有権 | 用途地域 | 第一種低層住居専用地域 |
| 借地権の詳細 | |||
| 地目 | 宅地 | 法的規制など | |
| 取引態様 | 仲介 | 駐車場 | |
| 売主 | 施工会社 | ||
| 建築確認番号 | 第HPA-2-180-1号 | 私道負担 | 私道負担:無 セットバック:不要 |
| その他費用 | |||
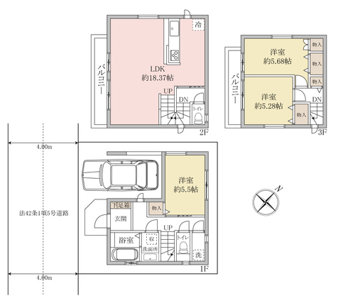
| 設備 | ポラスの仲介日暮里・舎人ライナー「舎人」駅より徒歩13分新築戸建 3LDKカースペース LDKはゆったり18.37帖ございます。周辺に商業施設が多数あり、住環境良好物件の詳細・ご案内は担当砂田(すなだ)まで気軽に問い合わせください。 | ||
| 備考 | 都市計画:市街化区域 ポラスの仲介日暮里・舎人ライナー「舎人」駅より徒歩13分新築戸建 3LDKカースペース LDKはゆったり18.37帖ございます。 周辺に商業施設が多数あり、住環境良好 | ||
販売概要
| 販売価格 | 4,198万円 | 最多価格帯 | |
| 建物面積 | 98.88m2 | 土地面積 | 61.87m2 |
| 間取り | 3LDK | 引渡時期 | |
| 現況 | 未完成 | ||
| 採光 | 南西 | ||
| 周辺環境 | 古千谷小学校 距離:150m/伊興中学校 距離:1200m | ||
| 情報更新日 | 2026年1月31日 | 次回更新日 | 2026年2月12日 |
| 取引条件有効期限 | |||
| 販売スケジュール | 販売戸数/総戸数 | 1戸/1戸 | |
| 情報提供元 |
名称:株式会社中央住宅 ポラスグループ【宅建業 国土交通大臣(13)第2401号】 住所:埼玉県越谷市南越谷1-21-2 電話:048-945-3935 ※お問い合わせの際は「マイスマ」を見たとお伝えになるとスムーズです | ||
| モデルルーム情報 | |||
条件の近い物件を検索
テーマ別で物件を探す(足立区)
周辺の不動産会社
|
|
株式会社オープンハウ… |
| 〒120-0034 東京都足立区千住横山ビル2階 |
|
株式会社 石塚不動産 |
| 〒123-0842 東京都足立区栗原1丁目12-18 |
|
|
岡田不動産 株式会社 |
| 〒121-0813 東京都足立区竹の塚5―7―19 |
|
|
株式会社 ミサワ |
| 〒120-0005 東京都足立区綾瀬2―28―13 パールハイツ101 |