家を買う・借りる・
不動産会社を探すならマイスマ
マイスマ > 中古一戸建て > 東京都 > 葛飾区 > 葛飾区お花茶屋2丁目
マイスマ > 不動産会社 > 埼玉県 > 越谷市 > 株式会社中央住宅 ポラスグループ > 葛飾区お花茶屋2丁目
マイスマ
中古一戸建て
会員の何がお得なの?

葛飾区お花茶屋2丁目

モバイル用QRコード

京成本線「お花茶屋」駅 徒歩6分 / 京成本線「堀切菖蒲園」駅 徒歩23分

東京都葛飾区お花茶屋2丁目

5,280万円

物件詳細情報
価格5,280万円その他負担金
交通 (1)京成本線「お花茶屋」駅 徒歩6分
(2)京成本線「堀切菖蒲園」駅 徒歩23分
所在地東京都葛飾区お花茶屋2丁目
設備物件の周辺地図を表示しています。建物の位置は正確でない場合がございます。
周辺環境上千葉小学校 距離:648m/双葉中学校 距離:455m
備考都市計画:市街化区域 
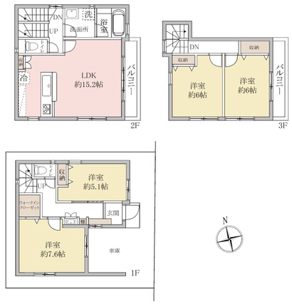
間取り4LDK建物面積97.07m2
土地面積66.47m2私道負担私道負担:無 セットバック:不要
築年月2012年8月建物構造木造3階建
駐車場駐車場:有り/空有接道状況一方 東側 間口7.7m 公道 幅27.9m
土地権利所有権地目宅地
借地権の詳細
用途地域第一種住居地域採光南東
建ぺい率60%容積率200%
現況住居中引渡時期
取引形態専任法的規制など
情報更新日2025年12月5日次回更新日2025年12月17日
取引条件有効期限
売主事業主
お問合せ先

株式会社中央住宅 ポラスグループ【宅建業 国土交通大臣(13)第2401号】

〒343-0845 埼玉県越谷市南越谷1-21-2

TEL:048-945-3935

※お問い合わせの際は「マイスマ」を見たとお伝えになるとスムーズです

営業時間:10:00~19:00/定休日:水曜日

条件の近い物件を検索

周辺の物件を地図から探す

テーマ別で物件を探す(葛飾区)

周辺の不動産会社

店舗の風景

株式会社リュウセイ

〒125-0052 東京都葛飾区柴又4-28-6
店舗の風景

亀有ホームズ合同会社

〒125-0061 東京都葛飾区亀有3-3-7
Webサイトのプレビュー

有限会社 NKライフ…

〒125-0062 東京都葛飾区青戸3―40―7 NKヤハタビル1F
画像がありません

株式会社 マツマル

〒125-0042 東京都葛飾区金町2―29―4 2階

物件の周辺情報

葛飾区周辺の施設

Yahoo!

この会社の他の物件

草加市松江3丁目 中古…

草加市松江3丁目 中古戸建
中古一戸建

所在地

埼玉県草加市

価格

2,798万円

最寄り駅

東武伊勢崎・大師線「…

間取り

3LDK

越谷市蒲生3丁目ポラス…

越谷市蒲生3丁目ポラスの旧分譲地
中古一戸建

所在地

埼玉県越谷市

価格

3,080万円

最寄り駅

東武伊勢崎・大師線「…

間取り

2LDK

蕨市中央6丁目 戸建

蕨市中央6丁目 戸建
中古一戸建

所在地

埼玉県蕨市

価格

4,600万円

最寄り駅

京浜東北・根岸線「蕨…

間取り

3LDK

さいたま市岩槻区岩槻…

さいたま市岩槻区岩槻 戸建
中古一戸建

所在地

埼玉県さいたま市岩槻区

価格

2,980万円

最寄り駅

東武野田線「岩槻」駅 …

間取り

4LDK

ページの先頭へ