家を買う・借りる・
不動産会社を探すならマイスマ
マイスマ > 中古一戸建て > 埼玉県 > 川口市 > 川口市大字差間
マイスマ > 不動産会社 > 埼玉県 > 越谷市 > 株式会社中央住宅 ポラスグループ > 川口市大字差間
マイスマ
中古一戸建て
会員の何がお得なの?

川口市大字差間

モバイル用QRコード

武蔵野線「東川口」駅からバス14分「源左衛門新田」バス停下車 徒歩2分

埼玉県川口市差間

2,400万円

即引渡し可
物件詳細情報
価格2,400万円その他負担金
交通 (1)武蔵野線「東川口」駅からバス14分「源左衛門新田」バス停下車 徒歩2分
所在地埼玉県川口市差間
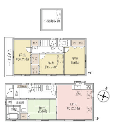
設備小屋裏収納付き収納豊富全居室に収納付き差間小学校徒歩7分(550m)周辺の商業施設・ベルク川口差間店 徒歩11分/850m・セブンイレブン 川口木曽呂店 徒歩7分/500m・スギドラッグ川口差間店 徒歩12分/900m物件の周辺地図を表示しています。建物の位置正確でない場合がございます。
周辺環境差間小学校 距離:550m/神根中学校 距離:1800m
備考都市計画:市街化区域 小屋裏収納 南西向きバルコニー環境に配慮できる太陽光発電付きですLDKは明るく開放感のある3面採光上部一部にトップライト付き
2023年9月:外壁塗装工事済み
オール電化住宅
間取り4LDK建物面積89.42m2
土地面積118.63m2私道負担私道負担:無 セットバック:不要
築年月2004年9月建物構造木造2階建
駐車場接道状況一方 南西側 間口2.5m 幅7.6m
土地権利所有権地目宅地
借地権の詳細
用途地域第一種低層住居専用地域採光南西
建ぺい率50%容積率100%
現況空家引渡時期即引渡し可
取引形態仲介法的規制など
情報更新日2026年1月11日次回更新日2026年1月22日
取引条件有効期限
売主事業主
お問合せ先

株式会社中央住宅 ポラスグループ【宅建業 国土交通大臣(13)第2401号】

〒343-0845 埼玉県越谷市南越谷1-21-2

TEL:048-945-3935

※お問い合わせの際は「マイスマ」を見たとお伝えになるとスムーズです

営業時間:10:00~19:00/定休日:水曜日

条件の近い物件を検索

周辺の物件を地図から探す

テーマ別で物件を探す(川口市)

周辺の不動産会社

Webサイトのプレビュー

センチュリー21ベスト…

〒333-0802 埼玉県川口市戸塚東2―11―1
Webサイトのプレビュー

有限会社 花伝舎

〒333-0811 埼玉県川口市戸塚2丁目25-18
Webサイトのプレビュー

株式会社 未来住販

〒333-0842 埼玉県川口市前川4-14-1
店舗の風景

ME不動産埼京株式会社

〒333-0866 埼玉県川口市芝4438―1

物件の周辺情報

川口市周辺の施設

Yahoo!

この会社の他の物件

さいたま市桜区道場2丁…

さいたま市桜区道場2丁目 戸建
中古一戸建

所在地

埼玉県さいたま市桜区

価格

3,180万円

最寄り駅

埼京線「南与野」駅 徒…

間取り

4LDK

小台1丁目 戸建

小台1丁目 戸建
中古一戸建

所在地

東京都足立区

価格

1億2,800万円

最寄り駅

日暮里・舎人ライナー…

間取り

9LDK

春日部市粕壁 戸建

春日部市粕壁 戸建
中古一戸建

所在地

埼玉県春日部市

価格

3,980万円

最寄り駅

東武野田線「八木崎」…

間取り

4SLDK

柏市西柏台1丁目 戸建

柏市西柏台1丁目 戸建
中古一戸建

所在地

千葉県柏市

価格

980万円

最寄り駅

東武野田線「初石」駅 …

間取り

3LDK

ページの先頭へ