家を買う・借りる・
不動産会社を探すならマイスマ
マイスマ > 中古一戸建て > 埼玉県 > 春日部市 > 春日部市米島 戸建
マイスマ > 不動産会社 > 埼玉県 > 越谷市 > 株式会社中央住宅 ポラスグループ > 春日部市米島 戸建
マイスマ
中古一戸建て
会員の何がお得なの?

春日部市米島 戸建

モバイル用QRコード

東武野田線「南桜井」駅 徒歩10分 / 東武野田線「藤の牛島」駅 徒歩46分

埼玉県春日部市米島

3,850万円

物件詳細情報
価格3,850万円その他負担金
交通 (1)東武野田線「南桜井」駅 徒歩10分
(2)東武野田線「藤の牛島」駅 徒歩46分
所在地埼玉県春日部市米島
設備小さいお子さまの通学も安心、川辺小学校徒歩4分(300m)全居室南向き陽当り良好です全居室収納付お部屋を広くお使いいただけます未利用地持分あり ゴミ置場持分あり(物件の周辺地図を表示しています。建物の位置正確でない場合がございます。)
周辺環境春日部市立川辺小学校 距離:300m/春日部市立飯沼中学校 距離:950m
備考都市計画:市街化区域  (ポラスの仲介)「南桜井駅」徒歩10分/2023年9月築、開発分譲地内のお住まいです/3LDK・約3帖のウォークインクローゼット付/カースペース2台、セカンドカーや、来客の際も安心です
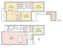
間取り3LDK建物面積85.28m2
土地面積125.05m2私道負担私道負担:無 セットバック:不要
築年月2023年9月建物構造木造2階建
駐車場駐車場:有り/空有接道状況一方 西側 間口12.2m 私道 幅4.5m
土地権利所有権地目宅地
借地権の詳細
用途地域第一種低層住居専用地域採光
建ぺい率50%容積率80%
現況住居中引渡時期
取引形態専任法的規制など
情報更新日2026年3月3日次回更新日2026年3月14日
取引条件有効期限
売主事業主
お問合せ先

株式会社中央住宅 ポラスグループ【宅建業 国土交通大臣(13)第2401号】

〒343-0845 埼玉県越谷市南越谷1-21-2

TEL:048-945-3935

※お問い合わせの際は「マイスマ」を見たとお伝えになるとスムーズです

営業時間:10:00~19:00/定休日:水曜日

条件の近い物件を検索

周辺の物件を地図から探す

テーマ別で物件を探す(春日部市)

周辺の不動産会社

店舗の風景

(株)春日部市住宅共…

〒344-0061 埼玉県春日部市粕壁5670―2
Webサイトのプレビュー

合同会社春日部不動産

〒344-0067 埼玉県春日部市中央6-8-13
店舗の風景

株式会社アイホーム

〒344-0011 埼玉県春日部市藤塚292-15
Webサイトのプレビュー

有限会社藤不動産

〒344-0004 埼玉県春日部市牛島1425-2

物件の周辺情報

春日部市周辺の施設

Yahoo!

この会社の他の物件

さいたま市大宮区吉敷…

さいたま市大宮区吉敷町1丁目 戸建
中古一戸建

所在地

埼玉県さいたま市大宮区

価格

5,800万円

最寄り駅

京浜東北・根岸線「大…

間取り

3SLDK

さいたま市緑区中尾 …

さいたま市緑区中尾 ポラスの旧分譲地
中古一戸建

所在地

埼玉県さいたま市緑区

価格

4,680万円

最寄り駅

京浜東北・根岸線「北…

間取り

2LDK

柏市旭町2丁目 戸建て

柏市旭町2丁目 戸建て
中古一戸建

所在地

千葉県柏市

価格

1,480万円

最寄り駅

常磐線「柏」駅 徒歩12分

間取り

2LDK

草加市弁天5丁目 中…

草加市弁天5丁目 中古戸建
中古一戸建

所在地

埼玉県草加市

価格

3,680万円

最寄り駅

東武伊勢崎・大師線「…

間取り

4LDK

ページの先頭へ