家を買う・借りる・
不動産会社を探すならマイスマ
マイスマ > 中古一戸建て > 東京都 > 足立区 > 足立区椿2丁目 戸建て
マイスマ > 不動産会社 > 埼玉県 > 越谷市 > 株式会社中央住宅 ポラスグループ > 足立区椿2丁目 戸建て
マイスマ
中古一戸建て
会員の何がお得なの?

足立区椿2丁目 戸建て

モバイル用QRコード

日暮里・舎人ライナー「西新井大師西」駅 徒歩14分 / 日暮里・舎人ライナー「江北」駅 徒歩18分

東京都足立区椿2丁目

4,180万円

物件詳細情報
価格4,180万円その他負担金
交通 (1)日暮里・舎人ライナー「西新井大師西」駅 徒歩14分
(2)日暮里・舎人ライナー「江北」駅 徒歩18分
所在地東京都足立区椿2丁目
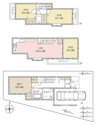
設備ポラスの仲介日暮里・舎人ライナー「西新井大師西」駅徒歩14分南側に多く窓を設置した間取りプランです全室2面採光で陽当り・通風良好です太陽光パネル設置・エコキュート(電気給湯器)で光熱費が抑えられます床暖房・浴室乾燥機・浴室TV・浴室ジェットバス付で充実した住宅設備です区立椿東公園に隣接しており、子育て世帯に嬉しい環境です物件のご見学・詳細については、ぜひ担当杉山(すぎやま)までお気軽にお問い合わせください。
周辺環境鹿浜五色桜小学校 距離:200m/鹿浜菜の花中学校 距離:400m
備考都市計画:市街化区域  ポラスの仲介日暮里・舎人ライナー「西新井大師西」駅徒歩14分
南側に多く窓を設置した間取りプランです
間取り3SLDK建物面積101.01m2
土地面積74.38m2私道負担私道負担:無 セットバック:不要
築年月2011年4月建物構造木造3階建
駐車場駐車場:有り/空有接道状況一方 東側 間口7.0m 公道 幅6.0m
土地権利所有権地目宅地
借地権の詳細
用途地域第一種住居地域採光
建ぺい率60%容積率300%
現況住居中引渡時期
取引形態一般法的規制など
情報更新日2025年12月15日次回更新日2025年12月26日
取引条件有効期限
売主事業主
お問合せ先

株式会社中央住宅 ポラスグループ【宅建業 国土交通大臣(13)第2401号】

〒343-0845 埼玉県越谷市南越谷1-21-2

TEL:048-945-3935

※お問い合わせの際は「マイスマ」を見たとお伝えになるとスムーズです

営業時間:10:00~19:00/定休日:水曜日

条件の近い物件を検索

周辺の物件を地図から探す

テーマ別で物件を探す(足立区)

周辺の不動産会社

店舗の風景

株式会社オープンハウ…

〒120-0034 東京都足立区千住横山ビル2階
Webサイトのプレビュー

岡田不動産 株式会社

〒121-0813 東京都足立区竹の塚5―7―19
画像がありません

株式会社 石塚不動産

〒123-0842 東京都足立区栗原1丁目12-18
Webサイトのプレビュー

ピタットハウス竹の塚…

〒121-0813 東京都足立区竹の塚6丁目21-1

物件の周辺情報

足立区周辺の施設

Yahoo!

この会社の他の物件

蕨市北町1丁目 戸建

蕨市北町1丁目 戸建
中古一戸建

所在地

埼玉県蕨市

価格

2,980万円

最寄り駅

京浜東北・根岸線「蕨…

間取り

3LDK

川口市大字安行 吉蔵 …

川口市大字安行 吉蔵 戸建て
中古一戸建

所在地

埼玉県川口市

価格

1,380万円

最寄り駅

埼玉高速鉄道「戸塚安…

間取り

4LDK

柏市高田 戸建て

柏市高田 戸建て
中古一戸建

所在地

千葉県柏市

価格

3,990万円

最寄り駅

つくばエクスプレス「…

間取り

4LDK

越谷市相模町1丁目 ポ…

越谷市相模町1丁目 ポラスの旧分譲地
中古一戸建

所在地

埼玉県越谷市

価格

3,980万円

最寄り駅

東武伊勢崎・大師線「…

間取り

3SLDK

ページの先頭へ