家を買う・借りる・
不動産会社を探すならマイスマ
マイスマ > 中古一戸建て > 東京都 > 足立区 > 関原3丁目 中古戸建
マイスマ > 不動産会社 > 埼玉県 > 越谷市 > 株式会社中央住宅 ポラスグループ > 関原3丁目 中古戸建
マイスマ
中古一戸建て
会員の何がお得なの?

関原3丁目 中古戸建

モバイル用QRコード

東武伊勢崎・大師線「西新井」駅 徒歩13分

東京都足立区関原3丁目

3,500万円

物件詳細情報
価格3,500万円その他負担金
交通 (1)東武伊勢崎・大師線「西新井」駅 徒歩13分
所在地東京都足立区関原3丁目
設備再建築不可契約不適合責任免責境界非明示セットバック面積約2m2増築未登記部分あり購入申込書類(買付証明書)については指定書式がございます図面と現況に相違がある場合は現況優先と致します。掲載の情報は2025年10月に調査し変更される場合があります。
周辺環境関原小学校 距離:10m/第七中学校 距離:400m
備考都市計画:市街化区域  ポラスの仲介建物面積約28坪投資用・シェアハウスとしても利用可能な4LDKアリオ西新井まで徒歩5分の4LDK
小・中学校徒歩5分圏内
近隣の道路が整備され綺麗な街並みです
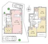
間取り4LDK建物面積93.91m2
土地面積97.42m2私道負担私道負担:無 セットバック量:2㎡
築年月1990年6月建物構造木造2階建
駐車場接道状況一方 東側 間口1.8m 公道 幅4.8m
土地権利所有権地目宅地
借地権の詳細
用途地域準工業地域採光
建ぺい率80%容積率200%
現況住居中引渡時期
取引形態専任法的規制など
情報更新日2025年12月26日次回更新日2026年1月7日
取引条件有効期限
売主事業主
お問合せ先

株式会社中央住宅 ポラスグループ【宅建業 国土交通大臣(13)第2401号】

〒343-0845 埼玉県越谷市南越谷1-21-2

TEL:048-945-3935

※お問い合わせの際は「マイスマ」を見たとお伝えになるとスムーズです

営業時間:10:00~19:00/定休日:水曜日

条件の近い物件を検索

周辺の物件を地図から探す

テーマ別で物件を探す(足立区)

周辺の不動産会社

店舗の風景

株式会社オープンハウ…

〒120-0034 東京都足立区千住横山ビル2階
画像がありません

株式会社 石塚不動産

〒123-0842 東京都足立区栗原1丁目12-18
Webサイトのプレビュー

岡田不動産 株式会社

〒121-0813 東京都足立区竹の塚5―7―19
Webサイトのプレビュー

ピタットハウス竹の塚…

〒121-0813 東京都足立区竹の塚6丁目21-1

物件の周辺情報

足立区周辺の施設

Yahoo!

この会社の他の物件

江戸川区興宮町 戸建て

江戸川区興宮町 戸建て
中古一戸建

所在地

東京都江戸川区

価格

3,980万円

最寄り駅

総武・中央緩行線「小…

間取り

4LDK

春日部市内牧 戸建

春日部市内牧 戸建
中古一戸建

所在地

埼玉県春日部市

価格

1,580万円

最寄り駅

東武伊勢崎・大師線「…

間取り

1LDK

越谷市レイクタウン1丁目

越谷市レイクタウン1丁目
中古一戸建

所在地

埼玉県越谷市

価格

7,680万円

最寄り駅

武蔵野線「越谷レイク…

間取り

4SLDK

ポラスの価値再生住宅…

ポラスの価値再生住宅足立区綾瀬4丁目 中古戸建
中古一戸建

所在地

東京都足立区

価格

5,380万円

最寄り駅

東京メトロ千代田線「…

間取り

3LDK

ページの先頭へ