中古一戸建て
会員の何がお得なの?

おおたかの森北3丁目 戸建
つくばエクスプレス「流山おおたかの森」駅 徒歩16分 / 東武野田線「流山おおたかの森」駅 徒歩16分
千葉県流山市おおたかの森北3丁目
8,680万円
物件詳細情報
| 価格 | 8,680万円 | その他負担金 |
| 交通 | (1)つくばエクスプレス「流山おおたかの森」駅 徒歩16分(2)東武野田線「流山おおたかの森」駅 徒歩16分 | ||
| 所在地 | 千葉県流山市おおたかの森北3丁目 | ||
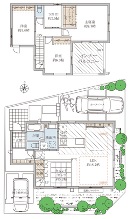
| 設備 | 南東角地にて日当たり良好2024年12月築ポラスの分譲築浅戸建・全部屋2面採光・陽当たり・通風良好・空間をすっきりオーブンにみせるフルフラットキッチン・家族の絆を育み続ける開放的なステージリビング・リビングに調湿機能付きの壁材エコカラットや空間に華やかさをもたらす化粧梁使用・家族とのコミュニケーションを育めるリビング階段・プライベート感ただようインナーバルコニー・お子様の遊び場、趣味やお仕事の部屋、納戸など、多目的に利用できる2.5帖のSOHO・カースペース2台可(車種による)建蔽率は60%ですが、角地緩和により70%になります。容積率は150%ですが、地区計画により120%に制限されます。SOHOも間取りに含まれています。 | ||
| 周辺環境 | 八木北小学校 距離:390m/常盤松中学校 距離:510m | ||
| 備考 | 都市計画:市街化区域 +ウォークインクローゼット+パントリー 「流山おおたかの森」駅徒歩16分。2024年12月築。ポラスの分譲築浅中古戸建が売りに出ました。南東角地、全部屋2面採光で陽当たり・通風良好です。お問い合わせお待ちしております。 | ||
| 間取り | 4SLDK | 建物面積 | 104.33m2 |
| 土地面積 | 137.65m2 | 私道負担 | 私道負担:無 セットバック:不要 |
| 築年月 | 2024年12月 | 建物構造 | 木造2階建 |
| 駐車場 | 駐車場:有り/空有 | 接道状況 | 角地 南側 間口11.1m 公道 幅4.0m 間口1m |
| 土地権利 | 所有権 | 地目 | 宅地 |
| 借地権の詳細 | |||
| 用途地域 | 第一種低層住居専用地域 | 採光 | 南 |
| 建ぺい率 | 70% | 容積率 | 120% |
| 現況 | 住居中 | 引渡時期 | |
| 取引形態 | 専任 | 法的規制など | |
| 情報更新日 | 2025年12月5日 | 次回更新日 | 2025年12月17日 |
| 取引条件有効期限 | |||
| 売主 | 事業主 | ||
| お問合せ先 |
株式会社中央住宅 ポラスグループ【宅建業 国土交通大臣(13)第2401号】 〒343-0845 埼玉県越谷市南越谷1-21-2 TEL:048-945-3935 ※お問い合わせの際は「マイスマ」を見たとお伝えになるとスムーズです 営業時間:10:00~19:00/定休日:水曜日 | ||
条件の近い物件を検索
テーマ別で物件を探す(流山市)
周辺の不動産会社
|
|
株式会社 アーチ |
| 〒270-0163 千葉県流山市南流山1-10-4 |
|
|
センチュリー21キヨマ… |
| 〒270-0163 千葉県流山市南流山3丁目10-1 |
|
|
ピタットハウス流山お… |
| 〒270-0114 千葉県流山市東初石6丁目184番地8 |
|
|
スターツピタットハウ… |
| 〒270-0163 千葉県流山市南流山1丁目1-2MMビル1F |