家を買う・借りる・
不動産会社を探すならマイスマ
マイスマ > 中古一戸建て > 千葉県 > 市川市 > 市川市鬼高3丁目
マイスマ > 不動産会社 > 埼玉県 > 越谷市 > 株式会社中央住宅 ポラスグループ > 市川市鬼高3丁目
マイスマ
中古一戸建て
会員の何がお得なの?

市川市鬼高3丁目

モバイル用QRコード

総武・中央緩行線「下総中山」駅 徒歩12分 / 東京メトロ東西線「原木中山」駅 徒歩11分

千葉県市川市鬼高3丁目

4,780万円

物件詳細情報
価格4,780万円その他負担金
交通 (1)総武・中央緩行線「下総中山」駅 徒歩12分
(2)東京メトロ東西線「原木中山」駅 徒歩11分
所在地千葉県市川市鬼高3丁目
設備
周辺環境市川市立鬼高小学校 距離:1200m/市川市立第六中学校 距離:800m
備考都市計画:市街化区域  当物件は売主様と当社にて専任媒介契約を締結している物件となります。物件の詳細の問い合わせや物件の内見の希望については当社まで直接お問い合わせください。
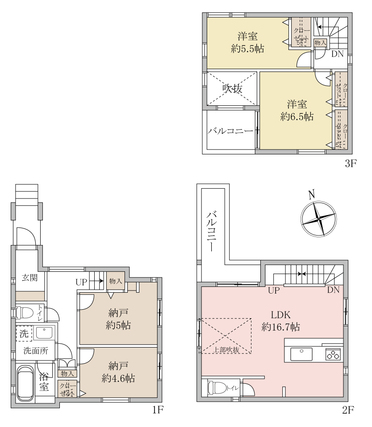
間取り2SLDK建物面積91.92m2
土地面積75.11m2私道負担私道負担:無 セットバック:不要
築年月2023年1月建物構造木造3階建
駐車場接道状況一方 北側 公道 幅4.1m
土地権利所有権地目宅地
借地権の詳細
用途地域工業地域採光
建ぺい率60%容積率200%
現況住居中引渡時期
取引形態専任法的規制など
情報更新日2025年12月5日次回更新日2025年12月17日
取引条件有効期限
売主事業主
お問合せ先

株式会社中央住宅 ポラスグループ【宅建業 国土交通大臣(13)第2401号】

〒343-0845 埼玉県越谷市南越谷1-21-2

TEL:048-945-3935

※お問い合わせの際は「マイスマ」を見たとお伝えになるとスムーズです

営業時間:10:00~19:00/定休日:水曜日

条件の近い物件を検索

周辺の物件を地図から探す

テーマ別で物件を探す(市川市)

周辺の不動産会社

Webサイトのプレビュー

ピタットハウス市川南…

〒272-0033 千葉県市川市市川南1―9―32 宝楽ビル1F
Webサイトのプレビュー

川崎不動産株式会社

〒272-0034 千葉県市川市市川1丁目24番8号
店舗の風景

株式会社 豊友ハウジ…

〒272-0023 千葉県市川市南八幡3―14―20
Webサイトのプレビュー

ピタットハウス北国分…

〒272-0837 千葉県市川市堀之内3―19―15

物件の周辺情報

市川市周辺の施設

Yahoo!

この会社の他の物件

野田市山崎 戸建

野田市山崎   戸建
中古一戸建

所在地

千葉県野田市

価格

3,880万円

最寄り駅

東武野田線「梅郷」駅 …

間取り

5LDK

越谷市千間台西6丁目 …

越谷市千間台西6丁目 戸建
中古一戸建

所在地

埼玉県越谷市

価格

3,680万円

最寄り駅

東武伊勢崎・大師線「…

間取り

3SLDK

松戸市二十世紀が丘梨…

松戸市二十世紀が丘梨元町 戸建
中古一戸建

所在地

千葉県松戸市

価格

5,980万円

最寄り駅

常磐線「松戸」駅梨元…

間取り

5SLDK

松伏町松伏 戸建

松伏町松伏 戸建
中古一戸建

所在地

埼玉県北葛飾郡松伏町

価格

1,280万円

最寄り駅

東武伊勢崎・大師線「…

間取り

4LDK

ページの先頭へ