家を買う・借りる・
不動産会社を探すならマイスマ
マイスマ > 中古一戸建て > 埼玉県 > 川口市 > 川口市南前川1丁目
マイスマ > 不動産会社 > 埼玉県 > 越谷市 > 株式会社中央住宅 ポラスグループ > 川口市南前川1丁目
マイスマ
中古一戸建て
会員の何がお得なの?

川口市南前川1丁目

モバイル用QRコード

京浜東北・根岸線「西川口」駅 徒歩18分 / 京浜東北・根岸線「蕨」駅 徒歩20分

埼玉県川口市南前川1丁目

4,290万円

物件詳細情報
価格4,290万円その他負担金
交通 (1)京浜東北・根岸線「西川口」駅 徒歩18分
(2)京浜東北・根岸線「蕨」駅 徒歩20分
所在地埼玉県川口市南前川1丁目
設備物件の周辺地図を表示しています。建物の位置が正確でない場合がございます。上記建ぺい率は角地緩和適用後のものです。ゴミ置場持分あり(9.82?×1/22)。
周辺環境上青木小学校 距離:1100m/上青木中学校 距離:1000m
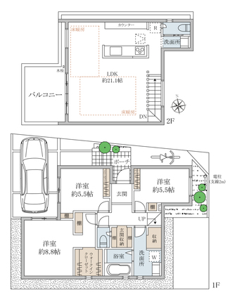
備考都市計画:市街化区域  2018年7月築ポラスの旧分譲地内。北東角地で採光良好なお家。2階LDKは約21.1帖で開放感のある勾配天井。商業施設が徒歩圏内で毎日のお買物も便利です。
間取り3LDK建物面積95.64m2
土地面積100.06m2私道負担私道負担:無 セットバック:不要
築年月2018年7月建物構造木造2階建
駐車場駐車場:有り/空有接道状況角地 北側 間口10.9m 公道 幅4.0m 間口1m
土地権利所有権地目宅地
借地権の詳細
用途地域第二種住居地域採光西
建ぺい率70%容積率200%
現況住居中引渡時期2026年3月
取引形態専任法的規制など
情報更新日2026年3月11日次回更新日2026年3月23日
取引条件有効期限
売主事業主
お問合せ先

株式会社中央住宅 ポラスグループ【宅建業 国土交通大臣(13)第2401号】

〒343-0845 埼玉県越谷市南越谷1-21-2

TEL:048-945-3935

※お問い合わせの際は「マイスマ」を見たとお伝えになるとスムーズです

営業時間:10:00~19:00/定休日:水曜日

条件の近い物件を検索

周辺の物件を地図から探す

テーマ別で物件を探す(川口市)

周辺の不動産会社

店舗の風景

有限会社ハウス壱番館

〒333-0861 埼玉県川口市柳崎5-9-13 
Webサイトのプレビュー

有限会社 花伝舎

〒333-0811 埼玉県川口市戸塚2丁目25-18
店舗の風景

サイワハウジング株式…

〒332-0017 埼玉県川口市栄町3-8-14
Webサイトのプレビュー

センチュリー21ベスト…

〒333-0802 埼玉県川口市戸塚東2―11―1

物件の周辺情報

川口市周辺の施設

Yahoo!

この会社の他の物件

草加市新栄1丁目 中古…

草加市新栄1丁目 中古戸建
中古一戸建

所在地

埼玉県草加市

価格

2,980万円

最寄り駅

東武伊勢崎・大師線「…

間取り

5LDK

流山市加5丁目 戸建

流山市加5丁目 戸建
中古一戸建

所在地

千葉県流山市

価格

3,880万円

最寄り駅

つくばエクスプレス「…

間取り

4LDK

吉川市栄町・3階建て住宅

吉川市栄町・3階建て住宅
中古一戸建

所在地

埼玉県吉川市

価格

3,980万円

最寄り駅

武蔵野線「吉川」駅 徒…

間取り

4SLDK

ポラスの旧分譲住宅 …

ポラスの旧分譲住宅 三郷市中央2丁目
中古一戸建

所在地

埼玉県三郷市

価格

5,380万円

最寄り駅

つくばエクスプレス「…

間取り

4LDK

ページの先頭へ