家を買う・借りる・
不動産会社を探すならマイスマ
マイスマ > 中古一戸建て > 埼玉県 > 蕨市 > 蕨市錦町6丁目 戸建
マイスマ > 不動産会社 > 埼玉県 > 越谷市 > 株式会社中央住宅 ポラスグループ > 蕨市錦町6丁目 戸建
マイスマ
中古一戸建て
会員の何がお得なの?

蕨市錦町6丁目 戸建

モバイル用QRコード

埼京線「北戸田」駅 徒歩8分 / 埼京線「戸田」駅 徒歩22分

埼玉県蕨市錦町6丁目

6,480万円

物件詳細情報
価格6,480万円その他負担金
交通 (1)埼京線「北戸田」駅 徒歩8分
(2)埼京線「戸田」駅 徒歩22分
所在地埼玉県蕨市錦町6丁目
設備敷地面積139?(仮換地面積)カースペース並列2台可の広さがある土地形状リビング床暖房、食洗器など標準設備吹抜けのある開放的なリビングスペース南側にお庭もあり、家庭菜園など楽しめます。徒歩5分以内に教育施設と買物施設あり・「蕨市立西小学校」徒歩3分・「セブンイレブン蕨錦町6丁目店」徒歩2分・「ドラッグストアセキ 蕨西店」徒歩4分準防火地域地区計画区域仮換地:10街区6画地 地積:139?
周辺環境蕨市立西小学校 距離:210m/蕨市立第二中学校 距離:800m
備考都市計画:市街化区域  ポラスの仲介北戸田駅徒歩8分
2020年築 太陽光発電システム蓄電池搭載住宅
室内とてもきれいにお使いいただいております
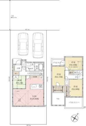
間取り4LDK建物面積100.03m2
土地面積139m2私道負担私道負担:無 セットバック:不要
築年月2020年5月建物構造木造2階建
駐車場接道状況一方 北側 公道 幅6.0m
土地権利所有権地目
借地権の詳細
用途地域第一種住居地域採光
建ぺい率60%容積率200%
現況住居中引渡時期
取引形態専任法的規制など
情報更新日2026年1月11日次回更新日2026年1月22日
取引条件有効期限
売主事業主
お問合せ先

株式会社中央住宅 ポラスグループ【宅建業 国土交通大臣(13)第2401号】

〒343-0845 埼玉県越谷市南越谷1-21-2

TEL:048-945-3935

※お問い合わせの際は「マイスマ」を見たとお伝えになるとスムーズです

営業時間:10:00~19:00/定休日:水曜日

条件の近い物件を検索

周辺の物件を地図から探す

テーマ別で物件を探す(蕨市)

周辺の不動産会社

Webサイトのプレビュー

有限会社 三光商事

〒335-0004 埼玉県蕨市中央3―21―11
Webサイトのプレビュー

マイライフ(株)

〒335-0003 埼玉県蕨市南町2-14-10
Webサイトのプレビュー

(株)浅野不動産蕨駅前店

〒335-0002 埼玉県蕨市塚越1-3-1 宅建ビル1階
Webサイトのプレビュー

有限会社吉村不動産

〒335-0002 埼玉県蕨市塚越7-3-5

物件の周辺情報

蕨市周辺の施設

Yahoo!

この会社の他の物件

松戸市松戸 戸建

松戸市松戸 戸建
中古一戸建

所在地

千葉県松戸市

価格

3,290万円

最寄り駅

常磐線「松戸」駅 徒歩…

間取り

3LDK

さいたま市南区内谷3丁…

さいたま市南区内谷3丁目 戸建
中古一戸建

所在地

埼玉県さいたま市南区

価格

5,750万円

最寄り駅

埼京線「武蔵浦和」駅 …

間取り

3LDK

白井市西白井3丁目 戸…

白井市西白井3丁目 戸建て
中古一戸建

所在地

千葉県白井市

価格

2,490万円

最寄り駅

北総鉄道「西白井」駅…

間取り

3LDK

さいたま市西区指扇 …

さいたま市西区指扇 中古戸建
中古一戸建

所在地

埼玉県さいたま市西区

価格

3,280万円

最寄り駅

川越線「西大宮」駅 徒…

間取り

4LDK

ページの先頭へ