新築一戸建て
会員の何がお得なの?

さいたま市大宮区三橋2丁目 新築戸建
京浜東北・根岸線「大宮」駅 徒歩25分 / 埼京線「大宮」駅からバス5分「並木公園」バス停下車 徒歩3分
埼玉県さいたま市大宮区三橋2丁目
4,280万円
物件詳細情報
全体情報
| 所在地 | 埼玉県さいたま市大宮区三橋2丁目 | ||
| 交通 | (1)京浜東北・根岸線「大宮」駅 徒歩25分(2)埼京線「大宮」駅からバス5分「並木公園」バス停下車 徒歩3分 | ||
| 総戸数 | 1戸 | 完成予定日 | 2026年3月(完成予定) |
| 建物構造 | 木造3階建 | 建ぺい率・容積率 | 60%・200% |
| 土地の権利 | 所有権 | 用途地域 | 第二種中高層住居専用地域 |
| 借地権の詳細 | |||
| 地目 | 宅地 | 法的規制など | |
| 取引態様 | 専任 | 駐車場 | 駐車場:有り/空有 |
| 売主 | 施工会社 | ||
| 建築確認番号 | 第KBI-YKH25-10-2756号 | 私道負担 | 私道負担:無 セットバック:不要 |
| その他費用 | |||
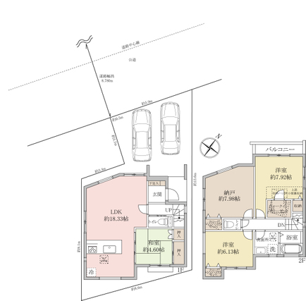
| 設備 | 2026年3月末完成予定新築住宅1階はLDKと和室の家族空間、2階は居室と納戸、バスルームのプライベート空間となっております。大容量のスライド収納やワックスフリーフローリング、収納付き三面鏡、床下収納、駐車スペース(2台分)など暮らしをサポートしてくれる設備も充実しております快適な暮らしを叶える住環境ビックターミナルである「大宮」駅まで徒歩25分、バスも利用可能な便利な立地にございます。教育施設や商業施設も徒歩15分圏内に充実しており、快適な暮らしを叶えることができます現地や建築プランなどご案内できますので、ぜひお問合せくださいジャパンホームシールドまたは、地盤ネットの地盤サポートシステム(20年間) | ||
| 備考 | 都市計画:市街化区域 2026年3月末完成予定のホーク・ワン施工住宅でございます現地や建築プランのご案内できますので、お気軽にお問合せください | ||
販売概要
| 販売価格 | 4,280万円 | 最多価格帯 | |
| 建物面積 | 100.7m2 | 土地面積 | 100.48m2 |
| 間取り | 3SLDK | 引渡時期 | |
| 現況 | 未完成 | ||
| 採光 | |||
| 周辺環境 | 三橋小学校 距離:300m/三橋中学校 距離:800m | ||
| 情報更新日 | 2026年1月21日 | 次回更新日 | 2026年2月2日 |
| 取引条件有効期限 | |||
| 販売スケジュール | 販売戸数/総戸数 | 1戸/1戸 | |
| 情報提供元 |
名称:株式会社中央住宅 ポラスグループ【宅建業 国土交通大臣(13)第2401号】 住所:埼玉県越谷市南越谷1-21-2 電話:048-945-3935 ※お問い合わせの際は「マイスマ」を見たとお伝えになるとスムーズです | ||
| モデルルーム情報 | |||
条件の近い物件を検索
テーマ別で物件を探す(さいたま市大宮区)
周辺の不動産会社
|
|
ブルーハウス株式会社 |
| 〒330-0846 埼玉県さいたま市大宮区大門町3丁目197星野第二ビ… |
|
|
株式会社パーシ・フル |
| 〒330-0855 埼玉県さいたま市大宮区上小町834-8 PACIFIC OMI… |
|
|
株式会社 オリオン |
| 〒330-0843 埼玉県さいたま市大宮区吉敷町1―73 |
|
|
三井住友トラスト不動… |
| 〒330-0846 埼玉県さいたま市大宮区宮町1丁目24 大宮GSビル… |