家を買う・借りる・
不動産会社を探すならマイスマ
マイスマ > 中古一戸建て > 埼玉県 > 越谷市 > 越谷市赤山町1丁目 中古戸建
マイスマ > 不動産会社 > 埼玉県 > 越谷市 > 株式会社中央住宅 ポラスグループ > 越谷市赤山町1丁目 中古戸建
マイスマ
中古一戸建て
会員の何がお得なの?

越谷市赤山町1丁目 中古戸建

モバイル用QRコード

東武伊勢崎・大師線「越谷」駅 徒歩5分

埼玉県越谷市赤山町1丁目

3,280万円

即引渡し可
物件詳細情報
価格3,280万円その他負担金
交通 (1)東武伊勢崎・大師線「越谷」駅 徒歩5分
所在地埼玉県越谷市赤山町1丁目
設備ポラスの仲介東武伊勢崎線・急行停車「越谷」駅徒歩5分の立地都心へのアクセスも良好通勤通学に大変便利です日比谷線・半蔵門線直通で「北千住」駅まで18分 「上野」駅まで31分越谷駅直結の商業施設「エキア越谷」にはお買い物施設も充実閑静な住宅街、南道路の整形地です小学校まで徒歩7分子育て環境も整っています越ヶ谷小学校/500m 富士中学校/1500m建物修繕履歴あり丁寧にお使いいただいていますリフォームのご相談も承ります備考/敷地内にNTTの電柱(支線のみ)あり契約不適合責任は免責とします物件の詳細やご内覧等は担当のつなしままでお気軽にお問合せください物件の周辺地図を表示しています。建物の位置が正確でない場合がございます。
周辺環境越ヶ谷小学校 距離:500m/富士中学校 距離:1500m
備考都市計画:市街化区域  ポラスの仲介東武伊勢崎線・急行停車「越谷」駅徒歩5分通勤通学に大変便利な立地です生活利便施設が充実しており、子育て環境も整っています物件の詳細やご内覧等は担当のつなしままで
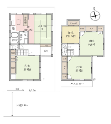
間取り4LDK建物面積102.67m2
土地面積100.6m2私道負担私道負担:無 セットバック:不要
築年月1980年12月建物構造木造2階建
駐車場接道状況一方 南西側 間口7.5m 公道 幅4.0m
土地権利所有権地目宅地
借地権の詳細
用途地域第一種中高層住居専用地域採光
建ぺい率60%容積率160%
現況空家引渡時期即引渡し可
取引形態専任法的規制など
情報更新日2026年4月4日次回更新日2026年4月16日
取引条件有効期限
売主事業主
お問合せ先

株式会社中央住宅 ポラスグループ【宅建業 国土交通大臣(13)第2401号】

〒343-0845 埼玉県越谷市南越谷1-21-2

TEL:048-945-3935

※お問い合わせの際は「マイスマ」を見たとお伝えになるとスムーズです

営業時間:10:00~19:00/定休日:水曜日

条件の近い物件を検索

周辺の物件を地図から探す

テーマ別で物件を探す(越谷市)

周辺の不動産会社

画像がありません

株式会社クローバーホ…

〒343-0807 埼玉県越谷市赤山町1丁目87番地 大関ビル2F
店舗の風景

住まいるホーム(株)

〒343-0808 埼玉県越谷市赤山本町 2-17 ソメヤビル1F
店舗の風景

株式会社京王地所 ピ…

〒343-0851 埼玉県越谷市七左町2丁目247番地2
Webサイトのプレビュー

大幸建設 株式会社

〒343-0845 埼玉県越谷市南越谷1―17―1

物件の周辺情報

越谷市周辺の施設

Yahoo!

この会社の他の物件

越谷市登戸町 中古戸建

越谷市登戸町 中古戸建
中古一戸建

所在地

埼玉県越谷市

価格

2,280万円

最寄り駅

東武伊勢崎・大師線「…

間取り

3LDK

さいたま市岩槻区表慈…

さいたま市岩槻区表慈恩寺 戸建
中古一戸建

所在地

埼玉県さいたま市岩槻区

価格

3,980万円

最寄り駅

東武野田線「東岩槻」…

間取り

6LDK

志木市柏町6丁目

志木市柏町6丁目
中古一戸建

所在地

埼玉県志木市

価格

3,980万円

最寄り駅

東武東上線「柳瀬川」…

間取り

4LDK

さいたま市桜区道場2丁…

さいたま市桜区道場2丁目 戸建
中古一戸建

所在地

埼玉県さいたま市桜区

価格

3,180万円

最寄り駅

埼京線「南与野」駅 徒…

間取り

4LDK

ページの先頭へ