家を買う・借りる・
不動産会社を探すならマイスマ
マイスマ > 中古一戸建て > 埼玉県 > 北葛飾郡松伏町 > 松伏町ゆめみ野東3丁目 戸建て
マイスマ > 不動産会社 > 埼玉県 > 越谷市 > 株式会社中央住宅 ポラスグループ > 松伏町ゆめみ野東3丁目 戸建て
マイスマ
中古一戸建て
会員の何がお得なの?

松伏町ゆめみ野東3丁目 戸建て

モバイル用QRコード

東武伊勢崎・大師線「北越谷」駅からバス23分「ゆめみ野東」バス停下車 徒歩4分

埼玉県北葛飾郡松伏町ゆめみ野東3丁目

1,930万円

即引渡し可
物件詳細情報
価格1,930万円その他負担金
交通 (1)東武伊勢崎・大師線「北越谷」駅からバス23分「ゆめみ野東」バス停下車 徒歩4分
所在地埼玉県北葛飾郡松伏町ゆめみ野東3丁目
設備・松伏ニュータウンショッピングセンターまで900m、お買物に便利です。・ウォークインクローゼット2つ、小屋裏収納があり、収納豊富です。・リフォームの相談も承ります。お気軽に担当 永井(ながい)までお問合せください。
周辺環境松伏小学校 距離:350m/松伏第二中学校 距離:900m
備考都市計画:市街化区域  敷地面積178.81?(54.09坪)ポラスの旧分譲住宅。
全居室2面採光通風も良好です。
カースペース2台可能(1台は車種制限あり)
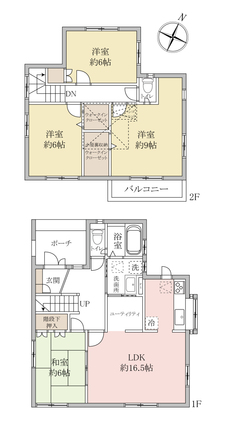
間取り4LDK建物面積105.78m2
土地面積178.81m2私道負担私道負担:無 セットバック:不要
築年月2001年6月建物構造木造2階建
駐車場駐車場:有り/空有接道状況一方 北側 公道 幅6.0m
土地権利所有権地目宅地
借地権の詳細
用途地域第一種低層住居専用地域採光
建ぺい率50%容積率80%
現況空家引渡時期即引渡し可
取引形態一般法的規制など
情報更新日2026年1月11日次回更新日2026年1月22日
取引条件有効期限
売主事業主
お問合せ先

株式会社中央住宅 ポラスグループ【宅建業 国土交通大臣(13)第2401号】

〒343-0845 埼玉県越谷市南越谷1-21-2

TEL:048-945-3935

※お問い合わせの際は「マイスマ」を見たとお伝えになるとスムーズです

営業時間:10:00~19:00/定休日:水曜日

条件の近い物件を検索

周辺の物件を地図から探す

テーマ別で物件を探す(北葛飾郡松伏町)

周辺の不動産会社

Webサイトのプレビュー

松井産業(株)松伏支店

〒- 埼玉県北葛飾郡松伏町松伏3212

物件の周辺情報

松伏町周辺の施設

Yahoo!

この会社の他の物件

越谷市大字大杉

越谷市大字大杉
中古一戸建

所在地

埼玉県越谷市

価格

3,790万円

最寄り駅

東武伊勢崎・大師線「…

間取り

3LDK

さいたま市中央区八王…

さいたま市中央区八王子5丁目 戸建
中古一戸建

所在地

埼玉県さいたま市中央区

価格

3,480万円

最寄り駅

埼京線「与野本町」駅 …

間取り

3SLDK

さいたま市南区大字大…

さいたま市南区大字大谷口
中古一戸建

所在地

埼玉県さいたま市南区

価格

3,490万円

最寄り駅

京浜東北・根岸線「浦…

間取り

3SLDK

草加市青柳7丁目・3階…

草加市青柳7丁目・3階建て
中古一戸建

所在地

埼玉県草加市

価格

3,680万円

最寄り駅

東武伊勢崎・大師線「…

間取り

5SLDK

ページの先頭へ