家を買う・借りる・
不動産会社を探すならマイスマ
マイスマ > 中古一戸建て > 埼玉県 > さいたま市南区 > さいたま市南区南浦和1丁目 戸建
マイスマ > 不動産会社 > 埼玉県 > 越谷市 > 株式会社中央住宅 ポラスグループ > さいたま市南区南浦和1丁目 戸建
マイスマ
中古一戸建て
会員の何がお得なの?

さいたま市南区南浦和1丁目 戸建

モバイル用QRコード

京浜東北・根岸線「南浦和」駅 徒歩10分 / 武蔵野線「南浦和」駅 徒歩10分

埼玉県さいたま市南区南浦和1丁目

6,080万円

物件詳細情報
価格6,080万円その他負担金
交通 (1)京浜東北・根岸線「南浦和」駅 徒歩10分
(2)武蔵野線「南浦和」駅 徒歩10分
所在地埼玉県さいたま市南区南浦和1丁目
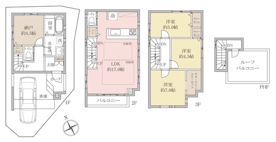
設備子育て中のファミリーにおすすめの戸建です3階建て3LDK納戸 夫婦の寝室に子供部屋までしっかりとれるプラン 1階納戸は家族の季節外の荷物などの置場所などに使えて、便利なスペース2023年11月築 室内大変きれいにお使いです3階建て2階リビング 外からの視線を気にせず寛げますアウトドアを楽しめる開放感あるルーフバルコニー 第2のリビングとして、子供の遊び場としてなど、使い方自由自在生活を便利で豊かにする設備仕様 リビング床暖房・食洗機・浴室乾燥機 他ビルトインガレージ 愛車を風雨から守ってくれるガレージ 雨の日の車の乗り降りも楽々です 車庫面積:8.69?(建物面積に含まず)
周辺環境さいたま市立大谷場小学校 距離:180m/さいたま市立大谷場中学校 距離:700m
備考都市計画:市街化区域  2023年11月築/3階建・3LDK納戸/南浦和駅徒歩10分/車庫1台分
間取り3SLDK建物面積91.28m2
土地面積60.96m2私道負担私道負担:無 セットバック:不要
築年月2023年11月建物構造木造3階建
駐車場駐車場:有り/空有接道状況一方 南側 間口6.2m 公道 幅9.6m
土地権利所有権地目宅地
借地権の詳細
用途地域第一種住居地域採光
建ぺい率60%容積率200%
現況住居中引渡時期
取引形態専任法的規制など
情報更新日2026年2月19日次回更新日2026年3月3日
取引条件有効期限
売主事業主
お問合せ先

株式会社中央住宅 ポラスグループ【宅建業 国土交通大臣(13)第2401号】

〒343-0845 埼玉県越谷市南越谷1-21-2

TEL:048-945-3935

※お問い合わせの際は「マイスマ」を見たとお伝えになるとスムーズです

営業時間:10:00~19:00/定休日:水曜日

条件の近い物件を検索

周辺の物件を地図から探す

テーマ別で物件を探す(さいたま市南区)

周辺の不動産会社

Webサイトのプレビュー

MET Design Estate株…

〒336-0025 埼玉県さいたま市南区文蔵2丁目29番19
店舗の風景

中央住販株式会社 南…

〒336-0017 埼玉県さいたま市南区南浦和2-32-11
Webサイトのプレビュー

有限会社 埼京ホーム

〒336-0022 埼玉県さいたま市南区白幡3―12―15 内田ビル…
Webサイトのプレビュー

株式会社エステート白…

〒336-0017 埼玉県さいたま市南区南浦和2丁目38-1 北原…

物件の周辺情報

南区周辺の施設

Yahoo!

この会社の他の物件

柏市松ケ崎 戸建て

柏市松ケ崎 戸建て
中古一戸建

所在地

千葉県柏市

価格

1,580万円

最寄り駅

千代田・常磐緩行線「…

間取り

4LDK

川口市戸塚 東4丁目 …

川口市戸塚 東4丁目 戸建て
中古一戸建

所在地

埼玉県川口市

価格

3,980万円

最寄り駅

武蔵野線「東川口」駅 …

間取り

4LDK

春日部市永沼 戸建

春日部市永沼 戸建
中古一戸建

所在地

埼玉県春日部市

価格

3,230万円

最寄り駅

東武野田線「藤の牛島…

間取り

5LDK

さいたま市桜区田島3丁…

さいたま市桜区田島3丁目 戸建
中古一戸建

所在地

埼玉県さいたま市桜区

価格

4,700万円

最寄り駅

武蔵野線「西浦和」駅 …

間取り

2SLDK

ページの先頭へ