中古一戸建て
会員の何がお得なの?

ポラスの旧分譲住宅 三郷市高州3丁目 戸建
千代田・常磐緩行線「金町」駅からバス19分「香取神社前」バス停下車 徒歩3分 / つくばエクスプレス「三郷中央」駅からバス21分「香取神社前」バス停下車 徒歩3分
埼玉県三郷市高州3丁目
3,180万円
物件詳細情報
| 価格 | 3,180万円 | その他負担金 |
| 交通 | (1)千代田・常磐緩行線「金町」駅からバス19分「香取神社前」バス停下車 徒歩3分(2)つくばエクスプレス「三郷中央」駅からバス21分「香取神社前」バス停下車 徒歩3分 | ||
| 所在地 | 埼玉県三郷市高州3丁目 | ||
| 設備 | Life Information・コモディイイダ三郷店:徒歩10分(800m)・セブンイレブン三郷公園前店:徒歩8分(600m)・高州小学校:徒歩9分(650m)・南中学校:徒歩1分(35m)・みさとファミリークリニック:徒歩14分(1100m)・みさと公園:徒歩4分(280m)ゴミ置場持分あり(4.51?×1/20)お引渡しは売買契約締結から2カ月~3カ月後を目安といたします。駐車場2台目は車種制限がございます。 | ||
| 周辺環境 | 高州小学校 距離:650m/南中学校 距離:40m | ||
| 備考 | 都市計画:市街化区域 ポラスの仲介2014年3月築 ポラスの旧分譲地 全20棟の街並み 分譲地内開発道路に面し交通量少なく静かで安全 「みさと公園」徒歩4分 みどり豊かで閑静な住宅地 | ||
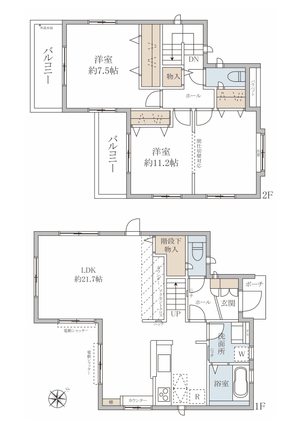
| 間取り | 2LDK | 建物面積 | 96.88m2 |
| 土地面積 | 120.05m2 | 私道負担 | 私道負担:無 セットバック:不要 |
| 築年月 | 2014年3月 | 建物構造 | 木造2階建 |
| 駐車場 | 駐車場:有り/空有 | 接道状況 | 一方 北東側 間口7.9m 公道 幅4.4m |
| 土地権利 | 所有権 | 地目 | 宅地 |
| 借地権の詳細 | |||
| 用途地域 | 第一種中高層住居専用地域 | 採光 | 南西 |
| 建ぺい率 | 60% | 容積率 | 180% |
| 現況 | 住居中 | 引渡時期 | |
| 取引形態 | 専任 | 法的規制など | |
| 情報更新日 | 2026年3月12日 | 次回更新日 | 2026年3月24日 |
| 取引条件有効期限 | |||
| 売主 | 事業主 | ||
| お問合せ先 |
株式会社中央住宅 ポラスグループ【宅建業 国土交通大臣(13)第2401号】 〒343-0845 埼玉県越谷市南越谷1-21-2 TEL:048-945-3935 ※お問い合わせの際は「マイスマ」を見たとお伝えになるとスムーズです 営業時間:10:00~19:00/定休日:水曜日 | ||
条件の近い物件を検索
テーマ別で物件を探す(三郷市)
周辺の不動産会社
|
|
株式会社 ホームネット |
| 〒341-0038 埼玉県三郷市中央5-31-19 |
|
|
有限会社 松栄住宅 |
| 〒341-0034 埼玉県三郷市新和1丁目11番地 |
|
|
有限会社 ハイランド… |
| 〒341-0003 埼玉県三郷市彦成2―96―2 |
|
|
株式会社 三郷地所 |
| 〒341-0018 埼玉県三郷市早稲田2―25―3 |