中古一戸建て
会員の何がお得なの?

川口市領家3丁目 戸建
埼玉高速鉄道「川口元郷」駅 徒歩33分 / 京浜東北・根岸線「川口」駅からバス17分「山王橋際」バス停下車 徒歩4分
埼玉県川口市領家3丁目
3,460万円
物件詳細情報
| 価格 | 3,460万円 | その他負担金 |
| 交通 | (1)埼玉高速鉄道「川口元郷」駅 徒歩33分(2)京浜東北・根岸線「川口」駅からバス17分「山王橋際」バス停下車 徒歩4分 | ||
| 所在地 | 埼玉県川口市領家3丁目 | ||
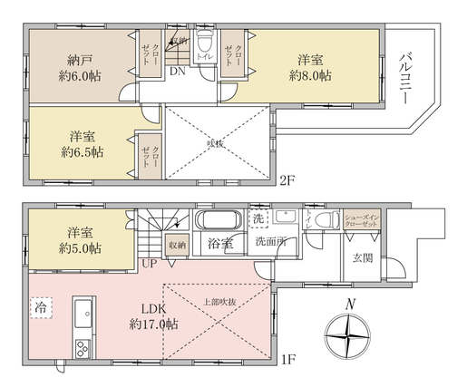
| 設備 | 設備が充実しております。室内大変奇麗にご利用なため、リフォーム費用を最小限にすることが可能です。駅も3路線利用可能、通勤通学に便利です。物件の周辺地図を表示しています。建物の位置が正確でない場合がございます。 | ||
| 周辺環境 | 領家小学校 距離:550m/領家中学校 距離:1200m | ||
| 備考 | 都市計画:市街化区域 2016年築、室内大変キレイにお使いです。リビングに吹き抜け、陽だまりのある明るい空間が広がります。居室3部屋と納戸があります。ファミリーにお勧めの間取りです。LDK約17帖、食洗器、浴室乾燥機付き、 | ||
| 間取り | 3SLDK | 建物面積 | 99.36m2 |
| 土地面積 | 102.98m2 | 私道負担 | 私道負担:無 セットバック:不要 |
| 築年月 | 2016年5月 | 建物構造 | 木造2階建 |
| 駐車場 | 接道状況 | 一方 東側 間口6.7m 公道 幅4.0m | |
| 土地権利 | 所有権 | 地目 | 宅地 |
| 借地権の詳細 | |||
| 用途地域 | 準工業地域 | 採光 | |
| 建ぺい率 | 60% | 容積率 | 200% |
| 現況 | 住居中 | 引渡時期 | |
| 取引形態 | 専任 | 法的規制など | |
| 情報更新日 | 2026年3月12日 | 次回更新日 | 2026年3月24日 |
| 取引条件有効期限 | |||
| 売主 | 事業主 | ||
| お問合せ先 |
株式会社中央住宅 ポラスグループ【宅建業 国土交通大臣(13)第2401号】 〒343-0845 埼玉県越谷市南越谷1-21-2 TEL:048-945-3935 ※お問い合わせの際は「マイスマ」を見たとお伝えになるとスムーズです 営業時間:10:00~19:00/定休日:水曜日 | ||
条件の近い物件を検索
テーマ別で物件を探す(川口市)
周辺の不動産会社
|
|
サイワハウジング株式… |
| 〒332-0017 埼玉県川口市栄町3-8-14 |
|
|
センチュリー21ベスト… |
| 〒333-0802 埼玉県川口市戸塚東2―11―1 |
|
|
ME不動産埼京株式会社 |
| 〒333-0866 埼玉県川口市芝4438―1 |
|
|
有限会社 花伝舎 |
| 〒333-0811 埼玉県川口市戸塚2丁目25-18 |