中古一戸建て
会員の何がお得なの?

さいたま市桜区中島1丁目 戸建
埼京線「南与野」駅 徒歩9分 / 京浜東北・根岸線「北浦和」駅からバス11分「山久保」バス停下車 徒歩7分
埼玉県さいたま市桜区中島1丁目
4,480万円
物件詳細情報
| 価格 | 4,480万円 | その他負担金 |
| 交通 | (1)埼京線「南与野」駅 徒歩9分(2)京浜東北・根岸線「北浦和」駅からバス11分「山久保」バス停下車 徒歩7分 | ||
| 所在地 | 埼玉県さいたま市桜区中島1丁目 | ||
| 設備 | (株)三栄建築設計施工・2020年11月 ビルトインガレージ暮らしやすい住環境南与野駅徒歩9分自転車3分(実測) 京浜東北線北浦和駅・浦和駅へはバス便利用可能お子様の通学らくらく 中島小学校210m・土合中学校850mお買い物施設が徒歩圏内に充実開放感のある吹抜・2階LDKの住まい大変きれいにお住まいです降り注ぐ陽光が団らん空間を満たし、家族がリラックスして過ごせる開放的な空間演出部屋全体をぽかぽかで心地良く、あたためる床暖房設置(LD一部)食洗機・浴室換気乾燥機等嬉しい設備あり全居室2面採光・収納付き大容量の収納が叶う、納戸4.6帖敷地の一部(0.17m2)に協定(隅切り部分)あり。詳しくは担当までお尋ねください。表示地図は物件の周辺地図を表示しています。建物の位置は正確でない場合がございます。 | ||
| 周辺環境 | 中島小学校 距離:350m/土合中学校 距離:850m | ||
| 備考 | 都市計画:市街化区域 2020年10月築、(株)三栄建築設計の戸建住宅のご紹介です南与野駅徒歩9分、教育施設までのアクセスも良好で子育て世帯におすすめですぜひお問合せ下さい | ||
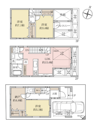
| 間取り | 3SLDK | 建物面積 | 89.49m2 |
| 土地面積 | 59.36m2 | 私道負担 | 私道負担:無 セットバック:不要 |
| 築年月 | 2020年10月 | 建物構造 | 木造3階建 |
| 駐車場 | 駐車場:有り/空有 | 接道状況 | 一方 東側 間口5.0m 公道 幅4.0m |
| 土地権利 | 所有権 | 地目 | 宅地 |
| 借地権の詳細 | |||
| 用途地域 | 準工業地域 | 採光 | 東 |
| 建ぺい率 | 60% | 容積率 | 200% |
| 現況 | 住居中 | 引渡時期 | |
| 取引形態 | 専任 | 法的規制など | |
| 情報更新日 | 2026年2月19日 | 次回更新日 | 2026年3月3日 |
| 取引条件有効期限 | |||
| 売主 | 事業主 | ||
| お問合せ先 |
株式会社中央住宅 ポラスグループ【宅建業 国土交通大臣(13)第2401号】 〒343-0845 埼玉県越谷市南越谷1-21-2 TEL:048-945-3935 ※お問い合わせの際は「マイスマ」を見たとお伝えになるとスムーズです 営業時間:10:00~19:00/定休日:水曜日 | ||
条件の近い物件を検索
テーマ別で物件を探す(さいたま市桜区)
周辺の不動産会社
|
|
株式会社クオリアホーム |
| 〒338-0821 埼玉県さいたま市桜区山久保2-8-8 |
|
ワイズエステート販売… |
| 〒331-0053 埼玉県さいたま市桜区上大久保981-1 ル・マイーム… |