家を買う・借りる・
不動産会社を探すならマイスマ
マイスマ > 中古一戸建て > 埼玉県 > 越谷市 > 越谷市中町 中古戸建
マイスマ > 不動産会社 > 埼玉県 > 越谷市 > 株式会社中央住宅 ポラスグループ > 越谷市中町 中古戸建
マイスマ
中古一戸建て
会員の何がお得なの?

越谷市中町 中古戸建

モバイル用QRコード

東武伊勢崎・大師線「越谷」駅 徒歩8分 / 武蔵野線「南越谷」駅 徒歩25分

埼玉県越谷市中町

4,980万円

物件詳細情報
価格4,980万円その他負担金
交通 (1)東武伊勢崎・大師線「越谷」駅 徒歩8分
(2)武蔵野線「南越谷」駅 徒歩25分
所在地埼玉県越谷市中町
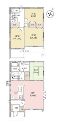
設備ポラスの仲介東武伊勢崎線・急行停車「越谷」駅徒歩8分の立地令和2年築、4LDKカースペース並列2台分(2台目車種制限あり)南道路に面しており、陽当たり良好敷地面積41.65坪、延床面積32.31坪各居室6帖以上、収納完備住宅設備も整っています食洗機/浄水器/浴室暖房乾燥機/TVモニターインターホン/他小学校まで徒歩2分公園も近く子育て環境良好越ヶ谷小学校/110m 越谷三丁目公園/350m徒歩圏内に生活利便施設が充実JR武蔵野線「南越谷」駅も利用可ラッシュ時でも「北千住」駅まで18分都心へのアクセス良好備考/建築基準法第22条区域物件の詳細やご内覧等は担当のまつもとまでお気軽にお問合せください物件の周辺地図を表示しています。建物の位置が正確でない場合がございます。
周辺環境越ヶ谷小学校 距離:110m/中央中学校 距離:1300m
備考都市計画:市街化区域  ポラスの仲介東武伊勢崎線・急行停車「越谷」駅徒歩8分都心へのアクセス良好令和2年築、4LDKカースペース並列2台分(2台目車種制限あり)南道路で陽当たり良好ご内覧も承ります
間取り4LDK建物面積106.81m2
土地面積137.7m2私道負担私道負担:無 セットバック:不要
築年月2020年3月建物構造木造2階建
駐車場駐車場:有り/空有接道状況一方 南側 間口8.0m 公道 幅4.7m
土地権利所有権地目宅地
借地権の詳細
用途地域第一種住居地域採光
建ぺい率60%容積率200%
現況住居中引渡時期
取引形態専任法的規制など
情報更新日2026年1月30日次回更新日2026年2月11日
取引条件有効期限
売主事業主
お問合せ先

株式会社中央住宅 ポラスグループ【宅建業 国土交通大臣(13)第2401号】

〒343-0845 埼玉県越谷市南越谷1-21-2

TEL:048-945-3935

※お問い合わせの際は「マイスマ」を見たとお伝えになるとスムーズです

営業時間:10:00~19:00/定休日:水曜日

条件の近い物件を検索

周辺の物件を地図から探す

テーマ別で物件を探す(越谷市)

周辺の不動産会社

画像がありません

株式会社クローバーホ…

〒343-0807 埼玉県越谷市赤山町1丁目87番地 大関ビル2F
店舗の風景

住まいるホーム(株)

〒343-0808 埼玉県越谷市赤山本町 2-17 ソメヤビル1F
店舗の風景

株式会社京王地所 ピ…

〒343-0851 埼玉県越谷市七左町2丁目247番地2
Webサイトのプレビュー

スターツピタットハウ…

〒343-0845 埼玉県越谷市南越谷1丁目19-10 須藤ビル1F

物件の周辺情報

越谷市周辺の施設

Yahoo!

この会社の他の物件

さいたま市南区南浦和…

さいたま市南区南浦和1丁目 戸建
中古一戸建

所在地

埼玉県さいたま市南区

価格

6,480万円

最寄り駅

京浜東北・根岸線「南…

間取り

3SLDK

松戸市栄町7丁目戸建

松戸市栄町7丁目戸建
中古一戸建

所在地

千葉県松戸市

価格

1,350万円

最寄り駅

千代田・常磐緩行線「…

間取り

4LDK

船橋市芝山5丁目

船橋市芝山5丁目
中古一戸建

所在地

千葉県船橋市

価格

1,480万円

最寄り駅

新京成電鉄「高根公団…

間取り

4LDK

おおたかの森北3丁目 …

おおたかの森北3丁目 戸建
中古一戸建

所在地

千葉県流山市

価格

8,280万円

最寄り駅

つくばエクスプレス「…

間取り

4SLDK

ページの先頭へ