家を買う・借りる・
不動産会社を探すならマイスマ
マイスマ > 中古一戸建て > 千葉県 > 流山市 > 流山市東初石2丁目 戸建
マイスマ > 不動産会社 > 埼玉県 > 越谷市 > 株式会社中央住宅 ポラスグループ > 流山市東初石2丁目 戸建
マイスマ
中古一戸建て
会員の何がお得なの?

流山市東初石2丁目 戸建

モバイル用QRコード

東武野田線「初石」駅 徒歩4分

千葉県流山市東初石2丁目

4,880万円

物件詳細情報
価格4,880万円その他負担金
交通 (1)東武野田線「初石」駅 徒歩4分
所在地千葉県流山市東初石2丁目
設備当社売主物件~全24棟 POLUSの旧分譲地内~フルリノベーション物件(2026.3完了予定)・初石駅徒歩4分・南東向き住戸につき、陽(ひ)と風を取り入れる過ごしやすい住まい・LDKはゆったり約20帖ゆとりのリビングには開放感いっぱいの大きな窓・各居室収納付で住空間もスッキリ広々・生活利便施設のスーパー、コンビニ、ドラッグストア、病院等が徒歩5分圏内に揃う便利な住環境。・カースペース2台可(車種による)・4LDK小屋裏収納とファミリー世帯におすすめです。
周辺環境八木北小学校 距離:1300m/常盤松中学校 距離:850m
備考都市計画:市街化区域 +小屋裏収納 東武野田線「初石」駅徒歩4分。全24棟のポラスの旧分譲地内。フルリノベーション物件。(2026.3完了予定)区画の整った閑静な住宅街ですご興味のある方は、是非ご内覧下さい。
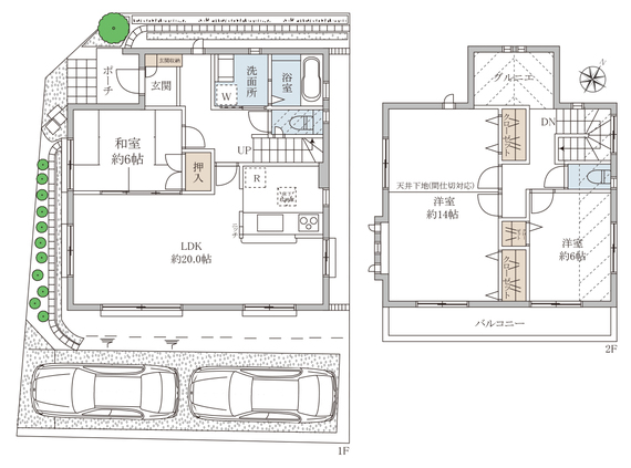
間取り4LDK建物面積109.3m2
土地面積136.08m2私道負担私道負担:無 セットバック:不要
築年月2007年4月建物構造木造2階建
駐車場駐車場:有り/空有接道状況角地 西側 間口11.5m 公道 幅6.0m 間口1m 位置指定:有
土地権利所有権地目宅地
借地権の詳細
用途地域第一種中高層住居専用地域採光南東
建ぺい率70%容積率100%
現況空家引渡時期
取引形態売主法的規制など
情報更新日2026年3月3日次回更新日2026年3月14日
取引条件有効期限
売主事業主
お問合せ先

株式会社中央住宅 ポラスグループ【宅建業 国土交通大臣(13)第2401号】

〒343-0845 埼玉県越谷市南越谷1-21-2

TEL:048-945-3935

※お問い合わせの際は「マイスマ」を見たとお伝えになるとスムーズです

営業時間:10:00~19:00/定休日:水曜日

条件の近い物件を検索

周辺の物件を地図から探す

テーマ別で物件を探す(流山市)

周辺の不動産会社

Webサイトのプレビュー

センチュリー21キヨマ…

〒270-0163 千葉県流山市南流山3丁目10-1
店舗の風景

株式会社 アーチ

〒270-0163 千葉県流山市南流山1-10-4
Webサイトのプレビュー

有限会社 流山地所

〒270-0163 千葉県流山市南流山4―1―6
Webサイトのプレビュー

ピタットハウス流山お…

〒270-0114 千葉県流山市東初石6丁目184番地8

物件の周辺情報

流山市周辺の施設

Yahoo!

この会社の他の物件

柏市南増尾5丁目 戸建て

柏市南増尾5丁目 戸建て
中古一戸建

所在地

千葉県柏市

価格

3,380万円

最寄り駅

新京成電鉄「五香」駅 …

間取り

3LDK

流山市三輪野山4丁目 …

流山市三輪野山4丁目 戸建て
中古一戸建

所在地

千葉県流山市

価格

4,580万円

最寄り駅

つくばエクスプレス「…

間取り

2SLDK

柏市新逆井1丁目 戸建て

柏市新逆井1丁目 戸建て
中古一戸建

所在地

千葉県柏市

価格

2,280万円

最寄り駅

新京成電鉄「五香」駅 …

間取り

4LDK

市川市宮久保1丁目

市川市宮久保1丁目
中古一戸建

所在地

千葉県市川市

価格

2,990万円

最寄り駅

総武・中央緩行線「本…

間取り

3LDK

ページの先頭へ