中古一戸建て
会員の何がお得なの?

越谷市越ヶ谷
東武伊勢崎・大師線「北越谷」駅 徒歩18分 / 東武伊勢崎・大師線「北越谷」駅からバス11分「埼玉東部循環器病院前」バス停下車 徒歩5分
埼玉県越谷市越ケ谷
2,980万円
物件詳細情報
| 価格 | 2,980万円 | その他負担金 |
| 交通 | (1)東武伊勢崎・大師線「北越谷」駅 徒歩18分(2)東武伊勢崎・大師線「北越谷」駅からバス11分「埼玉東部循環器病院前」バス停下車 徒歩5分 | ||
| 所在地 | 埼玉県越谷市越ケ谷 | ||
| 設備 | リフォーム履歴あり(2019年12月)エコキュート交換/(2022年9月)洗面化粧台交換/(2023年6月)1階トイレ交換/(2024年8月)外装塗装・シーリング工事・屋根カバー工事建築基準法第22条区域土地面積には路地状部分約35.5平米(約25%)を含みます。表示地図は物件の周辺地図を表示しています。建物の位置は正確でない場合がございます。北越谷駅徒歩18分の4LDKオール電化住宅です売主様がメンテナンスをしっかりされており、室内たいへん綺麗です物件の詳細・ご内覧は担当のおざわまでお気軽にお問い合わせください | ||
| 周辺環境 | 越谷市立花田小学校 距離:950m/越谷市立中央中学校 距離:400m | ||
| 備考 | 都市計画:市街化区域 ポラスの仲介2台駐車可駐車幅3m 東武伊勢崎線「北越谷」駅徒歩18分 2004年築、4LDKのオール電化住宅です エアコン4台付き | ||
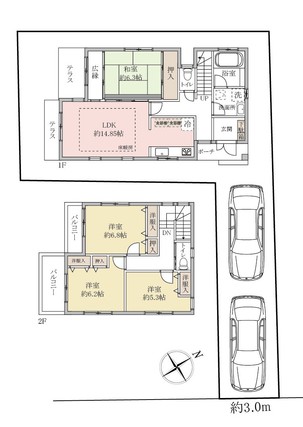
| 間取り | 4LDK | 建物面積 | 108.75m2 |
| 土地面積 | 142.18m2 | 私道負担 | 私道負担:無 セットバック:不要 |
| 築年月 | 2004年1月 | 建物構造 | 木造2階建 |
| 駐車場 | 駐車場:有り/空有 | 接道状況 | 一方 南西側 間口3.0m 公道 幅6.0m |
| 土地権利 | 所有権 | 地目 | 宅地 |
| 借地権の詳細 | |||
| 用途地域 | 第一種中高層住居専用地域 | 採光 | 南西 |
| 建ぺい率 | 60% | 容積率 | 200% |
| 現況 | 住居中 | 引渡時期 | |
| 取引形態 | 専任 | 法的規制など | |
| 情報更新日 | 2026年2月19日 | 次回更新日 | 2026年3月3日 |
| 取引条件有効期限 | |||
| 売主 | 事業主 | ||
| お問合せ先 |
株式会社中央住宅 ポラスグループ【宅建業 国土交通大臣(13)第2401号】 〒343-0845 埼玉県越谷市南越谷1-21-2 TEL:048-945-3935 ※お問い合わせの際は「マイスマ」を見たとお伝えになるとスムーズです 営業時間:10:00~19:00/定休日:水曜日 | ||
条件の近い物件を検索
テーマ別で物件を探す(越谷市)
周辺の不動産会社
|
株式会社クローバーホ… |
| 〒343-0807 埼玉県越谷市赤山町1丁目87番地 大関ビル2F |
|
|
住まいるホーム(株) |
| 〒343-0808 埼玉県越谷市赤山本町 2-17 ソメヤビル1F |
|
|
株式会社京王地所 ピ… |
| 〒343-0851 埼玉県越谷市七左町2丁目247番地2 |
|
|
大幸建設 株式会社 |
| 〒343-0845 埼玉県越谷市南越谷1―17―1 |