中古一戸建て
会員の何がお得なの?

松伏町ゆめみ野東3丁目 戸建
東武伊勢崎・大師線「北越谷」駅からバス25分「エローラ」バス停下車 徒歩4分 / 武蔵野線「吉川」駅からバス32分「エローラ」バス停下車 徒歩4分
埼玉県北葛飾郡松伏町ゆめみ野東3丁目
1,980万円
物件詳細情報
| 価格 | 1,980万円 | その他負担金 |
| 交通 | (1)東武伊勢崎・大師線「北越谷」駅からバス25分「エローラ」バス停下車 徒歩4分(2)武蔵野線「吉川」駅からバス32分「エローラ」バス停下車 徒歩4分 | ||
| 所在地 | 埼玉県北葛飾郡松伏町ゆめみ野東3丁目 | ||
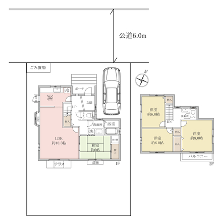
| 設備 | 敷地面積193.35m2(58.48坪)前面道路公道6m 開放的で車の出し入れもスムーズ風通しが良く陽の当たるお庭「松伏小学校」徒歩10分、「松伏第二中学校」徒歩12分「松伏ニュータウンショッピングモール」徒歩13分リフォーム履歴2014年12月 キッチン、ユニットバス交換、ガス衣類乾燥機設置2017年2月 外壁塗装、屋根塗装契約不適合責任免責上記、北越谷駅ゆき、吉川駅ゆきのバス乗車時間は通勤時間帯(7時台)の分数です。他、土地持分:地番12-23 28.66?×4/1148 | ||
| 周辺環境 | 松伏小学校 距離:770m/松伏第二中学校 距離:900m | ||
| 備考 | 都市計画:市街化区域 ポラスの仲介始発の「エローラ」バス停まで徒歩4分(約280m) エローラ バス停 北越谷駅ゆきは平日6時から18時台は5本/時間、7時台は7本始発です。 | ||
| 間取り | 4LDK | 建物面積 | 105.57m2 |
| 土地面積 | 193.35m2 | 私道負担 | 私道負担:無 セットバック:不要 |
| 築年月 | 1994年8月 | 建物構造 | 木造2階建 |
| 駐車場 | 接道状況 | 一方 北西側 間口9.2m 公道 幅6.0m | |
| 土地権利 | 所有権 | 地目 | 宅地 |
| 借地権の詳細 | |||
| 用途地域 | 第一種低層住居専用地域 | 採光 | |
| 建ぺい率 | 50% | 容積率 | 80% |
| 現況 | 空家 | 引渡時期 | 即引渡し可 |
| 取引形態 | 専任 | 法的規制など | |
| 情報更新日 | 2026年5月11日 | 次回更新日 | 2026年5月23日 |
| 取引条件有効期限 | |||
| 売主 | 事業主 | ||
| お問合せ先 |
株式会社中央住宅 ポラスグループ【宅建業 国土交通大臣(13)第2401号】 〒343-0845 埼玉県越谷市南越谷1-21-2 TEL:048-945-3935 ※お問い合わせの際は「マイスマ」を見たとお伝えになるとスムーズです 営業時間:10:00~19:00/定休日:水曜日 | ||
条件の近い物件を検索
テーマ別で物件を探す(北葛飾郡松伏町)
周辺の不動産会社
|
|
松井産業(株)松伏支店 |
| 〒- 埼玉県北葛飾郡松伏町松伏3212 |