家を買う・借りる・
不動産会社を探すならマイスマ
マイスマ > 中古一戸建て > 東京都 > 墨田区 > 墨田区八広4丁目
マイスマ > 不動産会社 > 埼玉県 > 越谷市 > 株式会社中央住宅 ポラスグループ > 墨田区八広4丁目
マイスマ
中古一戸建て
会員の何がお得なの?

墨田区八広4丁目

モバイル用QRコード

京成押上線「八広」駅 徒歩10分 / 京成押上線「京成曳舟」駅 徒歩13分

東京都墨田区八広4丁目

5,280万円

物件詳細情報
価格5,280万円その他負担金
交通 (1)京成押上線「八広」駅 徒歩10分
(2)京成押上線「京成曳舟」駅 徒歩13分
所在地東京都墨田区八広4丁目
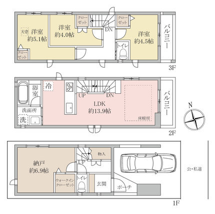
設備空室につきゆっくりとご見学可能です閑静な住宅地ですウォークインクローゼット・納戸付きで収納豊富LDKは開放的な3面採光駅徒歩10分交通利便性高い立地内装リフォーム2026年4月中旬完了予定ハウスクリーニング、クロス張替、フロアタイル上貼り、建具補修、浴室補修・塗装詳細は(株)中央住宅 草加営業所 担当:望月までお問い合わせください。境界非明示車庫面積約7.10平米(上記建物面積に含まず)S納戸物件の周辺地図を表示しています。建物の位置正確でない場合がございます。
周辺環境墨田区立八広小学校 距離:950m/墨田区立吾嬬第二中学校 距離:140m
備考都市計画:市街化区域 ウォークインクローゼット ポラスの仲介2016年3月築の3SLDK
カースペース1台ありLD一部に床暖房あり
ビルトインガレージ
リフォーム渡し(令和8年(2026年)4月中旬完了予定)
間取り3SLDK建物面積83.31m2
土地面積47.16m2私道負担私道負担:無 セットバック:不要
築年月2016年3月建物構造木造3階建
駐車場駐車場:有り/空有接道状況一方 東側 間口3.9m 私道 幅4.0m
土地権利所有権地目宅地
借地権の詳細
用途地域準工業地域採光
建ぺい率80%容積率200%
現況空家引渡時期
取引形態専任法的規制など
情報更新日2026年2月19日次回更新日2026年3月3日
取引条件有効期限
売主事業主
お問合せ先

株式会社中央住宅 ポラスグループ【宅建業 国土交通大臣(13)第2401号】

〒343-0845 埼玉県越谷市南越谷1-21-2

TEL:048-945-3935

※お問い合わせの際は「マイスマ」を見たとお伝えになるとスムーズです

営業時間:10:00~19:00/定休日:水曜日

条件の近い物件を検索

周辺の物件を地図から探す

テーマ別で物件を探す(墨田区)

周辺の不動産会社

店舗の風景

株式会社オープンハウ…

〒130-0022 東京都墨田区江東橋3-13-1 KS15-3F
店舗の風景

コムホーム株式会社

〒130-0024 東京都墨田区菊川2-5-9
Webサイトのプレビュー

ヤマト住建株式会社 …

〒130-0022 東京都墨田区江東橋2丁目2-3 丸山ビル4F
Webサイトのプレビュー

株式会社 ホンダ地所

〒131-0041 東京都墨田区八広4―23―5 オリンポス八広1階

物件の周辺情報

墨田区周辺の施設

Yahoo!

この会社の他の物件

八潮市大字南川崎

八潮市大字南川崎
中古一戸建

所在地

埼玉県八潮市

価格

2,980万円

最寄り駅

つくばエクスプレス「…

間取り

4LDK

野田市みずき4丁目戸建

野田市みずき4丁目戸建
中古一戸建

所在地

千葉県野田市

価格

3,180万円

最寄り駅

東武野田線「梅郷」駅 …

間取り

4LDK

我孫子市中峠 戸建て

我孫子市中峠 戸建て
中古一戸建

所在地

千葉県我孫子市

価格

2,550万円

最寄り駅

成田線「湖北」駅 徒歩…

間取り

4LDK

松戸市稔台8丁目

松戸市稔台8丁目
中古一戸建

所在地

千葉県松戸市

価格

3,700万円

最寄り駅

新京成電鉄「上本郷」…

間取り

3SLDK

ページの先頭へ