中古一戸建て
会員の何がお得なの?

さいたま市 岩槻区美園東1丁目 戸建て
埼玉高速鉄道「浦和美園」駅 徒歩15分 / 武蔵野線「東川口」駅からバス10分「釣上上組」バス停下車 徒歩7分
埼玉県さいたま市岩槻区美園東1丁目
6,980万円
物件詳細情報
| 価格 | 6,980万円 | その他負担金 |
| 交通 | (1)埼玉高速鉄道「浦和美園」駅 徒歩15分(2)武蔵野線「東川口」駅からバス10分「釣上上組」バス停下車 徒歩7分 | ||
| 所在地 | 埼玉県さいたま市岩槻区美園東1丁目 | ||
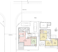
| 設備 | 物件の周辺地図を表示しています。建物の位置正確でない場合がございます。駐車スペース並列3台可能(車種制限あり)2階リビングであり、LDK約24.5帖と開放感があります屋上リゾート×注文住宅。“さいたま”に、こんな家は他にない。南東向きで日当たり良好。屋上ジャグジー・バーカウンター・ホームシアター・スピーカー・テレビ配線を完備。土地187.17m2(56.61坪)、建物128.34m2(38.82坪)。日常を“非日常”に変える邸宅。開放感とプライバシー性を両立しつつ、屋上ライフを考慮した設計です。 | ||
| 周辺環境 | |||
| 備考 | 都市計画:市街化区域 埼玉高速鉄道線「浦和美園」駅徒歩15分オール電化住宅屋上付き4LDKの注文住宅 スーパー・小児クリニック・保育園・公園など徒歩5分圏内にあり、便利な環境となります | ||
| 間取り | 4LDK | 建物面積 | 128.34m2 |
| 土地面積 | 187.17m2 | 私道負担 | 私道負担:無 セットバック:不要 |
| 築年月 | 2014年6月 | 建物構造 | 木造2階建 |
| 駐車場 | 駐車場:有り/空有 | 接道状況 | 一方 南東側 間口10.0m 公道 幅6.0m |
| 土地権利 | 所有権 | 地目 | 宅地 |
| 借地権の詳細 | |||
| 用途地域 | 第一種中高層住居専用地域 | 採光 | |
| 建ぺい率 | 60% | 容積率 | 150% |
| 現況 | 住居中 | 引渡時期 | |
| 取引形態 | 一般 | 法的規制など | |
| 情報更新日 | 2026年5月17日 | 次回更新日 | 2026年5月29日 |
| 取引条件有効期限 | |||
| 売主 | 事業主 | ||
| お問合せ先 |
株式会社中央住宅 ポラスグループ【宅建業 国土交通大臣(13)第2401号】 〒343-0845 埼玉県越谷市南越谷1-21-2 TEL:048-945-3935 ※お問い合わせの際は「マイスマ」を見たとお伝えになるとスムーズです 営業時間:10:00~19:00/定休日:水曜日 | ||
条件の近い物件を検索
テーマ別で物件を探す(さいたま市岩槻区)
周辺の不動産会社
|
有限会社 大和土地建物 |
| 〒339-0058 埼玉県さいたま市岩槻区本丸3丁目16-61 |
|
|
ファミリー不動産株式… |
| 〒339-0056 埼玉県さいたま市岩槻区加倉1-26-13 |
|
|
株式会社秀和建設 |
| 〒339-0057 埼玉県さいたま市岩槻区本町4丁目2-5 |