家を買う・借りる・
不動産会社を探すならマイスマ
マイスマ > 中古一戸建て > 埼玉県 > 戸田市 > 戸田市喜沢南2丁目 戸建
マイスマ > 不動産会社 > 埼玉県 > 越谷市 > 株式会社中央住宅 ポラスグループ > 戸田市喜沢南2丁目 戸建
マイスマ
中古一戸建て
会員の何がお得なの?

戸田市喜沢南2丁目 戸建

モバイル用QRコード

埼京線「戸田公園」駅 徒歩18分 / 京浜東北・根岸線「西川口」駅 徒歩23分

埼玉県戸田市喜沢南2丁目

4,780万円

即引渡し可
物件詳細情報
価格4,780万円その他負担金
交通 (1)埼京線「戸田公園」駅 徒歩18分
(2)京浜東北・根岸線「西川口」駅 徒歩23分
所在地埼玉県戸田市喜沢南2丁目
設備ポラスの旧分譲、美しい街並みに存する 2010年1月築 の住まい全17棟旧分譲地 リブインコテージ戸田公園 スタイルオブヨーロピアンリゾート温かみのを感じさせる外観デザイン定期的なメンテナンスを実施しています住民以外の利用が少ないコの字型道路に接道住まいを彩る植栽、「灯かりのいえなみ協定」で昼間も夜間も美しく、安心リビングアクセス・3LDKファミリープラン室内きれいに使用されています家族団らんのLD部分にガス温水式床暖房 お部屋全体があたたかく、心地の良い空間家族の気配を感じながら過ごせる、リビング造作カウンター PC・お子様の家庭学習・家事・趣味等に豊富な収納南側からのたっぷりの採光室内クリーニング実施済み、きれいない部屋でお引渡しますヨーロピアンスタイルのポラスの旧分譲住宅のご紹介です定期的な点検・メンテナンスを実施、保証継承も可能。室内クリーニング実施、即引渡可能ゴミ置場持分あり:4m2(持分1/17)表示地図は物件の周辺地図を表示しています。建物の位置は正確でない場合がございます。
周辺環境戸田第二小学校 距離:160m/喜沢中学校 距離:260m
備考都市計画:市街化区域  ポラスグループだから実現できる、購入リフォームの一体提案リフォーム費用の「概算シュミレーション」で予算管理や引渡までのスケジュール管理がスムーズです住宅ローンについてもご相談いただけます
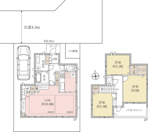
間取り3LDK建物面積90.46m2
土地面積100.15m2私道負担私道負担:無 セットバック:不要
築年月2010年1月建物構造木造2階建
駐車場駐車場:有り/空有接道状況一方 北側 間口6.9m 公道 幅4.3m
土地権利所有権地目宅地
借地権の詳細
用途地域第一種中高層住居専用地域採光
建ぺい率60%容積率172%
現況空家引渡時期即引渡し可
取引形態専任法的規制など
情報更新日2026年4月30日次回更新日2026年5月12日
取引条件有効期限
売主事業主
お問合せ先

株式会社中央住宅 ポラスグループ【宅建業 国土交通大臣(13)第2401号】

〒343-0845 埼玉県越谷市南越谷1-21-2

TEL:048-945-3935

※お問い合わせの際は「マイスマ」を見たとお伝えになるとスムーズです

営業時間:10:00~19:00/定休日:水曜日

条件の近い物件を検索

周辺の物件を地図から探す

テーマ別で物件を探す(戸田市)

周辺の不動産会社

Webサイトのプレビュー

オルテ地所開発 株式…

〒335-0023 埼玉県戸田市本町4丁目17-28
Webサイトのプレビュー

有限会社 福仙堂不動産

〒335-0021 埼玉県戸田市新曽2226―2
Webサイトのプレビュー

株式会社 山福不動産

〒335-0023 埼玉県戸田市本町1―1―11
Webサイトのプレビュー

株式会社平和不動産

〒335-0023 埼玉県戸田市新曽2186番地1

物件の周辺情報

戸田市周辺の施設

Yahoo!

この会社の他の物件

さいたま市見沼区南中…

さいたま市見沼区南中野 戸建
中古一戸建

所在地

埼玉県さいたま市見沼区

価格

4,280万円

最寄り駅

京浜東北・根岸線「大…

間取り

4LDK

さいたま市南区辻8丁目…

さいたま市南区辻8丁目 戸建
中古一戸建

所在地

埼玉県さいたま市南区

価格

3,480万円

最寄り駅

埼京線「北戸田」駅 徒…

間取り

3SLDK

さいたま市緑区道祖土3…

さいたま市緑区道祖土3丁目 戸建
中古一戸建

所在地

埼玉県さいたま市緑区

価格

4,780万円

最寄り駅

京浜東北・根岸線「北…

間取り

3SLDK

葛飾区奥戸4丁目

葛飾区奥戸4丁目
中古一戸建

所在地

東京都葛飾区

価格

5,480万円

最寄り駅

総武・中央緩行線「新…

間取り

3LDK

ページの先頭へ