中古一戸建て
会員の何がお得なの?

草加市稲荷6丁目
東武伊勢崎・大師線「草加」駅 徒歩34分 / 東武伊勢崎・大師線「草加」駅からバス20分「伊草天満宮前」バス停下車 徒歩5分
埼玉県草加市稲荷6丁目
2,580万円
物件詳細情報
| 価格 | 2,580万円 | その他負担金 |
| 交通 | (1)東武伊勢崎・大師線「草加」駅 徒歩34分(2)東武伊勢崎・大師線「草加」駅からバス20分「伊草天満宮前」バス停下車 徒歩5分 | ||
| 所在地 | 埼玉県草加市稲荷6丁目 | ||
| 設備 | 喧騒から離れた閑静な住環境で暮らせます前面は南側6m・東側8m道路ライフインフォメーション・松ノ木小学校 850m/徒歩11分・八幡中学校 1400m/徒歩18分・八潮高等学校 1100m/徒歩14分・ファミリーマート草加稲荷店 600m/徒歩8分・生鮮市場TOP八潮伊草店 230m/徒歩3分・稲荷公園 190m/徒歩3分・モールプラザ草加 2100m/徒歩27分上記建ぺい率は角地緩和適用後の数値です。物件の周辺地図を表示しています。建物の位置正確でない場合がございます。 | ||
| 周辺環境 | 八潮市立松之木小学校 距離:850m/八潮市立八幡中学校 距離:1400m | ||
| 備考 | 都市計画:市街化区域 小屋裏収納 ポラスの仲介南東角地につき日当たり良好 3LDK納戸小屋裏収納と収納豊富です コンビニ・スーパーが徒歩10分圏内に揃っています 現況空家ゆっくりご見学頂けます | ||
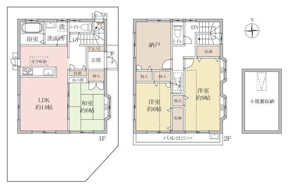
| 間取り | 3SLDK | 建物面積 | 104.34m2 |
| 土地面積 | 105.17m2 | 私道負担 | 私道負担:無 セットバック:不要 |
| 築年月 | 2007年2月 | 建物構造 | 木造2階建 |
| 駐車場 | 接道状況 | 角地 南側 間口6.0m 公道 幅6.0m 南西側 間口1m | |
| 土地権利 | 所有権 | 地目 | 宅地 |
| 借地権の詳細 | |||
| 用途地域 | 第一種中高層住居専用地域 | 採光 | 南 |
| 建ぺい率 | 70% | 容積率 | 200% |
| 現況 | 空家 | 引渡時期 | |
| 取引形態 | 専任 | 法的規制など | |
| 情報更新日 | 2026年3月31日 | 次回更新日 | 2026年4月12日 |
| 取引条件有効期限 | |||
| 売主 | 事業主 | ||
| お問合せ先 |
株式会社中央住宅 ポラスグループ【宅建業 国土交通大臣(13)第2401号】 〒343-0845 埼玉県越谷市南越谷1-21-2 TEL:048-945-3935 ※お問い合わせの際は「マイスマ」を見たとお伝えになるとスムーズです 営業時間:10:00~19:00/定休日:水曜日 | ||
条件の近い物件を検索
テーマ別で物件を探す(草加市)
周辺の不動産会社
|
|
大恵不動産株式会社 |
| 〒340-0034 埼玉県草加市氷川町2150-9 |
|
|
株式会社なまず屋不動… |
| 〒340-0012 埼玉県草加市神明2丁目4番8号 |
|
|
センチュリー21 オガ… |
| 〒340-0011 埼玉県草加市栄町3丁目4-2 |
|
|
株式会社 大地コーポ… |
| 〒340-0034 埼玉県草加市氷川町2129―4 フォトアークビル… |