家を買う・借りる・
不動産会社を探すならマイスマ
マイスマ > 中古一戸建て > 千葉県 > 船橋市 > 船橋市東中山1丁目
マイスマ > 不動産会社 > 埼玉県 > 越谷市 > 株式会社中央住宅 ポラスグループ > 船橋市東中山1丁目
マイスマ
中古一戸建て
会員の何がお得なの?

船橋市東中山1丁目

モバイル用QRコード

京成本線「東中山」駅 徒歩4分 / 総武・中央緩行線「下総中山」駅 徒歩12分

千葉県船橋市東中山1丁目

1億1,980万円

物件詳細情報
価格1億1,980万円その他負担金
交通 (1)京成本線「東中山」駅 徒歩4分
(2)総武・中央緩行線「下総中山」駅 徒歩12分
所在地千葉県船橋市東中山1丁目
設備物件の周辺地図を表示しています。建物の位置正確でない場合がございます。接道:東4m公・私道がけ条例
周辺環境葛飾小学校 距離:1300m/葛飾中学校 距離:1500m
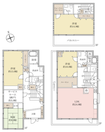
備考都市計画:市街化区域  敷地128.35坪、4LDK納戸でゆとりのある暮らしを全居室8帖以上の開放感
二世帯利用も可能な、ゆとりある3階建
24帖のLDKが紡ぐ、贅沢な時間
5帖の納戸付で収納も充実の住まい
間取り4SLDK建物面積215.29m2
土地面積424.3m2私道負担私道負担:無 セットバック:不要
築年月2003年10月建物構造木造3階建
駐車場駐車場:有り/空有接道状況一方 東側 私道 幅4.0m
土地権利所有権地目宅地
借地権の詳細
用途地域第一種低層住居専用地域採光
建ぺい率40%容積率80%
現況空家引渡時期
取引形態一般法的規制など
情報更新日2026年5月13日次回更新日2026年5月25日
取引条件有効期限
売主事業主
お問合せ先

株式会社中央住宅 ポラスグループ【宅建業 国土交通大臣(13)第2401号】

〒343-0845 埼玉県越谷市南越谷1-21-2

TEL:048-945-3935

※お問い合わせの際は「マイスマ」を見たとお伝えになるとスムーズです

営業時間:10:00~19:00/定休日:水曜日

条件の近い物件を検索

周辺の物件を地図から探す

テーマ別で物件を探す(船橋市)

周辺の不動産会社

店舗の風景

株式会社レイエス

〒273-0005 千葉県船橋市本町5丁目3-3 杉川ビル2F
店舗の風景

武田不動産株式会社

〒273-0855 千葉県船橋市馬込西1-1-2
店舗の風景

長野ホーム株式会社

〒274-0825 千葉県船橋市前原西2丁目21番13号
店舗の風景

株式会社 クレア・ド…

〒274-0077 千葉県船橋市薬円台5-36-17

物件の周辺情報

船橋市周辺の施設

Yahoo!

この会社の他の物件

千葉市稲毛区萩台町

千葉市稲毛区萩台町
中古一戸建

所在地

千葉県千葉市稲毛区

価格

4,180万円

最寄り駅

千葉都市モノレール「…

間取り

4SLDK

流山市東深井 戸建て

流山市東深井 戸建て
中古一戸建

所在地

千葉県流山市

価格

1,980万円

最寄り駅

東武野田線「運河」駅 …

間取り

3LDK

流山市おおたかの森北2…

流山市おおたかの森北2丁目   戸建
中古一戸建

所在地

千葉県流山市

価格

1億4,900万円

最寄り駅

つくばエクスプレス「…

間取り

4SLDK

足立区足立2丁目

足立区足立2丁目
中古一戸建

所在地

東京都足立区

価格

3,480万円

最寄り駅

東武伊勢崎・大師線「…

間取り

3LDK

ページの先頭へ