家を買う・借りる・
不動産会社を探すならマイスマ
マイスマ > 中古一戸建て > 千葉県 > 柏市 > 柏市若柴 戸建て
マイスマ > 不動産会社 > 埼玉県 > 越谷市 > 株式会社中央住宅 ポラスグループ > 柏市若柴 戸建て
マイスマ
中古一戸建て
会員の何がお得なの?

柏市若柴 戸建て

モバイル用QRコード

つくばエクスプレス「柏の葉キャンパス」駅 徒歩15分

千葉県柏市若柴

2,990万円

物件詳細情報
価格2,990万円その他負担金
交通 (1)つくばエクスプレス「柏の葉キャンパス」駅 徒歩15分
所在地千葉県柏市若柴
設備松葉第一小学校まで徒歩7分、松葉中学校まで徒歩10分毎日のお買い物に便利なヨークマート花野井店まで徒歩9分相続登記が未了です。売主の責任と負担において、引渡し時までに完了させるものとします。物件の周辺地図を表示しています。建物の位置正確でない場合がございます。
周辺環境柏市立松葉第一小学校 距離:550m/柏市立松葉中学校 距離:800m
備考都市計画:市街化区域  つくばエクスプレス「柏の葉キャンパス」駅徒歩15分南東道路に面した陽当りの良い整形地
カースペース2台可能
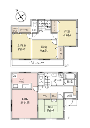
全居室6帖以上の間取り
間取り4LDK建物面積96.87m2
土地面積117.91m2私道負担私道負担:無 セットバック:不要
築年月2009年8月建物構造木造2階建
駐車場接道状況一方 南東側 私道 幅4.0m
土地権利所有権地目宅地
借地権の詳細
用途地域第一種低層住居専用地域採光南西
建ぺい率50%容積率100%
現況住居中引渡時期
取引形態専任法的規制など
情報更新日2026年4月21日次回更新日2026年5月3日
取引条件有効期限
売主事業主
お問合せ先

株式会社中央住宅 ポラスグループ【宅建業 国土交通大臣(13)第2401号】

〒343-0845 埼玉県越谷市南越谷1-21-2

TEL:048-945-3935

※お問い合わせの際は「マイスマ」を見たとお伝えになるとスムーズです

営業時間:10:00~19:00/定休日:水曜日

条件の近い物件を検索

周辺の物件を地図から探す

テーマ別で物件を探す(柏市)

周辺の不動産会社

店舗の風景

センチュリー21八建

〒277-0852 千葉県柏市旭町3丁目3番25号
店舗の風景

株式会社イシンホーム…

〒277-0804 千葉県柏市※本社住所※東京都江戸川区中央4-16
店舗の風景

WAVE住宅販売株式会社

〒277-0832 千葉県柏市北柏1丁目1-1
店舗の風景

株式会社丸大ホーム

〒277-0827 千葉県柏市松葉町2丁目6-1

物件の周辺情報

柏市周辺の施設

Yahoo!

この会社の他の物件

船橋市咲が丘三丁目

船橋市咲が丘三丁目
中古一戸建

所在地

千葉県船橋市

価格

3,700万円

最寄り駅

新京成電鉄「二和向台…

間取り

4LDK

さいたま市緑区東浦和6…

さいたま市緑区東浦和6丁目 戸建
中古一戸建

所在地

埼玉県さいたま市緑区

価格

4,680万円

最寄り駅

武蔵野線「東浦和」駅 …

間取り

2SLDK

野田市清水 戸建

野田市清水    戸建
中古一戸建

所在地

千葉県野田市

価格

2,280万円

最寄り駅

東武野田線「清水公園…

間取り

3LDK

さいたま市中央区八王…

さいたま市中央区八王子5丁目 戸建
中古一戸建

所在地

埼玉県さいたま市中央区

価格

3,480万円

最寄り駅

埼京線「与野本町」駅 …

間取り

3SLDK

ページの先頭へ