家を買う・借りる・
不動産会社を探すならマイスマ
マイスマ > 中古一戸建て > 東京都 > 足立区 > 足立区六月1丁目 戸建
マイスマ > 不動産会社 > 埼玉県 > 越谷市 > 株式会社中央住宅 ポラスグループ > 足立区六月1丁目 戸建
マイスマ
中古一戸建て
会員の何がお得なの?

足立区六月1丁目 戸建

モバイル用QRコード

東武伊勢崎・大師線「竹ノ塚」駅 徒歩14分 / 東武伊勢崎・大師線「西新井」駅 徒歩23分

東京都足立区六月1丁目

3,180万円

即引渡し可
物件詳細情報
価格3,180万円その他負担金
交通 (1)東武伊勢崎・大師線「竹ノ塚」駅 徒歩14分
(2)東武伊勢崎・大師線「西新井」駅 徒歩23分
所在地東京都足立区六月1丁目
設備南側隣接地が更地の為、日当たり良好(2026年3月現在)全居室2面採光につき、通風も良好です。空き家の為、いつでも内覧可能です。 是非お気軽に担当綱島(つなしま)までお問合せください。
周辺環境保木間小学校 距離:240m/六月中学校 距離:150m
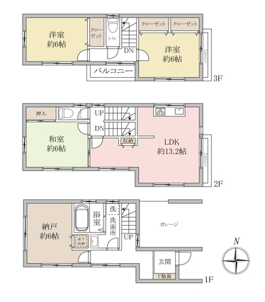
備考都市計画:市街化区域  「竹ノ塚駅」徒歩14分全居室6帖以上の車庫付きの3LDK納戸です。
小中学校、公園が300m以内で、子育て環境良好です
 保木間小学校240m・六月中学校150m、保木間公園290m
間取り3SLDK建物面積95.58m2
土地面積67.42m2私道負担私道負担:無 セットバック:不要
築年月2001年8月建物構造木造3階建
駐車場接道状況一方 東側 間口4.7m 私道 幅4.0m
土地権利所有権地目宅地
借地権の詳細
用途地域第一種中高層住居専用地域採光
建ぺい率60%容積率160%
現況空家引渡時期即引渡し可
取引形態専任法的規制など
情報更新日2026年4月1日次回更新日2026年4月13日
取引条件有効期限
売主事業主
お問合せ先

株式会社中央住宅 ポラスグループ【宅建業 国土交通大臣(13)第2401号】

〒343-0845 埼玉県越谷市南越谷1-21-2

TEL:048-945-3935

※お問い合わせの際は「マイスマ」を見たとお伝えになるとスムーズです

営業時間:10:00~19:00/定休日:水曜日

条件の近い物件を検索

周辺の物件を地図から探す

テーマ別で物件を探す(足立区)

周辺の不動産会社

店舗の風景

株式会社オープンハウ…

〒120-0034 東京都足立区千住横山ビル2階
Webサイトのプレビュー

岡田不動産 株式会社

〒121-0813 東京都足立区竹の塚5―7―19
画像がありません

株式会社 石塚不動産

〒123-0842 東京都足立区栗原1丁目12-18
Webサイトのプレビュー

株式会社 城北不動産…

〒120-0035 東京都足立区千住中居町33―1 安蒜第一ビル2階

物件の周辺情報

足立区周辺の施設

Yahoo!

この会社の他の物件

千葉市若葉区愛生町

千葉市若葉区愛生町
中古一戸建

所在地

千葉県千葉市若葉区

価格

3,780万円

最寄り駅

千葉都市モノレール「…

間取り

3LDK

越谷市神明町1丁目

越谷市神明町1丁目
中古一戸建

所在地

埼玉県越谷市

価格

1,980万円

最寄り駅

東武伊勢崎・大師線「…

間取り

3LDK

柏市篠籠田 戸建て

柏市篠籠田 戸建て
中古一戸建

所在地

千葉県柏市

価格

5,380万円

最寄り駅

常磐線「柏」駅 徒歩20分

間取り

3SLDK

流山市野々下6丁目 …

流山市野々下6丁目 戸建
中古一戸建

所在地

千葉県流山市

価格

3,780万円

最寄り駅

東武野田線「豊四季」…

間取り

3LDK

ページの先頭へ