中古一戸建て
会員の何がお得なの?

草加市瀬崎6丁目
東武伊勢崎・大師線「谷塚」駅 徒歩18分 / 東武伊勢崎・大師線「谷塚」駅からバス9分「瀬崎氷川公園」バス停下車 徒歩4分
埼玉県草加市瀬崎6丁目
4,880万円
物件詳細情報
| 価格 | 4,880万円 | その他負担金 |
| 交通 | (1)東武伊勢崎・大師線「谷塚」駅 徒歩18分(2)東武伊勢崎・大師線「谷塚」駅からバス9分「瀬崎氷川公園」バス停下車 徒歩4分 | ||
| 所在地 | 埼玉県草加市瀬崎6丁目 | ||
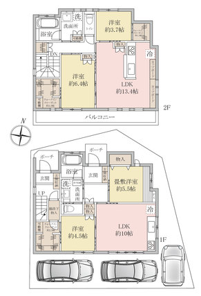
| 設備 | 2階リビングには大きな吹き抜けがあり開放的2面採光のLDKウォークインクローゼット付き現況空家ゆっくりご見学いただけます分離型2世帯住宅です。1階は未使用なのでとても綺麗です。車は車種によりますが3台駐車可能です。ゴミ置き場3.6平米(持分1/10)、未利用地3.96平米(持分1/8)、未利用地3.36平米(持分1/8)4LLDDKKウォークインクローゼット×33台駐車可能(車種制限有)物件の周辺地図を表示しています。建物の位置正確でない場合がございます。 | ||
| 周辺環境 | 草加市立瀬崎小学校 距離:1000m/草加市立瀬崎中学校 距離:550m | ||
| 備考 | 都市計画:市街化区域 LDK、ウォークインクローゼット×3 ポラスの仲介分離型2世帯住宅(単世帯の方も利用可) 2020年1月築 3台駐車可能(車種制限有)北東角地、閑静な住宅街 全窓電動シャッターのため開閉の手間がなく防犯性もUP | ||
| 間取り | 4LDK | 建物面積 | 122.55m2 |
| 土地面積 | 117.67m2 | 私道負担 | 私道負担:無 セットバック:不要 |
| 築年月 | 2020年1月 | 建物構造 | 木造2階建 |
| 駐車場 | 駐車場:有り/空有 | 接道状況 | 角地 北側 間口6.6m 公道 幅7.2m 南西側 間口1m |
| 土地権利 | 所有権 | 地目 | 宅地 |
| 借地権の詳細 | |||
| 用途地域 | 第一種住居地域 | 採光 | 南 |
| 建ぺい率 | 60% | 容積率 | 200% |
| 現況 | 空家 | 引渡時期 | |
| 取引形態 | 専任 | 法的規制など | |
| 情報更新日 | 2026年4月25日 | 次回更新日 | 2026年5月7日 |
| 取引条件有効期限 | |||
| 売主 | 事業主 | ||
| お問合せ先 |
株式会社中央住宅 ポラスグループ【宅建業 国土交通大臣(13)第2401号】 〒343-0845 埼玉県越谷市南越谷1-21-2 TEL:048-945-3935 ※お問い合わせの際は「マイスマ」を見たとお伝えになるとスムーズです 営業時間:10:00~19:00/定休日:水曜日 | ||
条件の近い物件を検索
テーマ別で物件を探す(草加市)
周辺の不動産会社
|
|
センチュリー21 オガ… |
| 〒340-0011 埼玉県草加市栄町3丁目4-2 |
|
|
株式会社なまず屋不動… |
| 〒340-0012 埼玉県草加市神明2丁目4番8号 |
|
|
大恵不動産株式会社 |
| 〒340-0034 埼玉県草加市氷川町2150-9 |
|
|
株式会社 大地コーポ… |
| 〒340-0034 埼玉県草加市氷川町2129―4 フォトアークビル… |