家を買う・借りる・
不動産会社を探すならマイスマ
マイスマ > 中古マンション > 東京都 > 足立区 > グローリオ西新井
マイスマ > 不動産会社 > 埼玉県 > 越谷市 > 株式会社中央住宅 ポラスグループ > グローリオ西新井
マイスマ
中古マンション
会員の何がお得なの?

グローリオ西新井

モバイル用QRコード

東武伊勢崎・大師線「梅島」駅 徒歩18分 / 東武伊勢崎・大師線「西新井」駅 徒歩19分

東京都足立区島根2丁目

5,480万円

物件詳細情報
物件名グローリオ西新井
設備ペットとともに暮らせます(細則有)三面バルコニー全居室6帖以上ゲストルーム完備徒歩で梅島・西新井駅、バス便で北千住・竹ノ塚・六町駅の利用も可能ご希望ありましたらリフォームプランのご紹介いたします。物件の詳細・ご自宅の売却やローンのご相談は担当:杉山(すぎやま)までお気軽にお問い合わせください。
周辺環境中島根小学校 距離:140m/六月中学校 距離:750m
備考都市計画:市街化区域  ポラスの仲介最上階×大型ルーフバルコニー(約63平)×4方向開口の角住戸
大型LDK(約24帖)窓が多く室内が非常に明るいです
10階は2住戸のみ 壁で接していないのでプライバシー性高い仕様
交通 (1)東武伊勢崎・大師線「梅島」駅 徒歩18分
(2)東武伊勢崎・大師線「西新井」駅 徒歩19分
所在地 東京都足立区島根2丁目
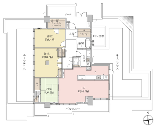
間取り3LDK敷地面積
専有面積113.51m2(壁芯) バルコニー面積19.4m2
築年月2002年3月総戸数115
構造及び階数RC造地上10階建 階建/階10階建/10階
建物現況住居中入居可能時期
用途地域第一種中高層住居専用地域法的規制など
建物権利土地権利所有権
借地権の詳細
駐車場・車庫駐車場:有り/空有/月額:10000円採光西
情報更新日2025年12月19日次回更新日2025年12月31日
取引条件有効期限
管理費17600円修繕積立金23837円
その他費用取引態様専任
管理形態管理形態:全部委託/管理会社・管理情報:クラシテ株式会社/管理人状況:日勤/有施工会社
売主事業主
お問合せ先

株式会社中央住宅 ポラスグループ【宅建業 国土交通大臣(13)第2401号】

〒343-0845 埼玉県越谷市南越谷1-21-2

TEL:048-945-3935

※お問い合わせの際は「マイスマ」を見たとお伝えになるとスムーズです

営業時間:10:00~19:00/定休日:水曜日

条件の近い物件を検索

周辺の物件を地図から探す

テーマ別で物件を探す(足立区)

周辺の不動産会社

店舗の風景

株式会社オープンハウ…

〒120-0034 東京都足立区千住横山ビル2階
画像がありません

株式会社 石塚不動産

〒123-0842 東京都足立区栗原1丁目12-18
Webサイトのプレビュー

岡田不動産 株式会社

〒121-0813 東京都足立区竹の塚5―7―19
Webサイトのプレビュー

スターツピタットハウ…

〒120-0026 東京都足立区千住旭町4番11号 西村ビル3F

物件の周辺情報

足立区周辺の施設

Yahoo!

この会社の他の物件

NICアーバンハイム柏

NICアーバンハイム柏
中古マンション

所在地

千葉県柏市

価格

1,930万円

最寄り駅

常磐線「柏」駅 徒歩12分

間取り

3LDK

市川ハイマンション

市川ハイマンション
中古マンション

所在地

千葉県市川市

価格

2,290万円

最寄り駅

東京メトロ東西線「原…

間取り

3LDK

ダイアパレス金町第一

ダイアパレス金町第一
中古マンション

所在地

東京都葛飾区

価格

2,280万円

最寄り駅

千代田・常磐緩行線「…

間取り

2LDK

東武大師前サンライト…

東武大師前サンライトマンション3号館
中古マンション

所在地

東京都足立区

価格

3,500万円

最寄り駅

東武伊勢崎・大師線「…

間取り

2LDK

ページの先頭へ