家を買う・借りる・
不動産会社を探すならマイスマ
マイスマ > 中古マンション > 埼玉県 > 朝霞市 > リーフガーデンズルネ朝霞台
マイスマ > 不動産会社 > 埼玉県 > 越谷市 > 株式会社中央住宅 ポラスグループ > リーフガーデンズルネ朝霞台
マイスマ
中古マンション
会員の何がお得なの?

リーフガーデンズルネ朝霞台

モバイル用QRコード

東武東上線「朝霞台」駅 徒歩19分 / 武蔵野線「北朝霞」駅 徒歩21分

埼玉県朝霞市溝沼4丁目

2,490万円

物件詳細情報
物件名リーフガーデンズルネ朝霞台
設備2路線・3駅利用可能なアクセス保育園・小学校・中学校が徒歩10分圏内商業施設も多数安心のオートロックエントランス便利な宅配ボックスペット飼育可(細則あり)お子様のいるご家庭にも十分な広さのお部屋また角部屋のため隣接部屋の音も気になりにくいです。室内のリフォームも併せてご提案させていただきます。お気軽にお問い合わせください物件の周辺地図を表示しています。建物の位置正確でない場合がございます。
周辺環境朝霞市立朝霞第十小学校 距離:20m/朝霞市立朝霞第三中学校 距離:500m
備考都市計画:市街化区域  ポラスの仲介南西角部屋、79?超の4LDK静かな環境に佇む129戸の大規模マンション
交通 (1)東武東上線「朝霞台」駅 徒歩19分
(2)武蔵野線「北朝霞」駅 徒歩21分
所在地 埼玉県朝霞市溝沼4丁目
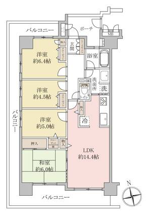
間取り4LDK敷地面積
専有面積79.54m2(壁芯) バルコニー面積29.16m2
築年月1999年10月総戸数129
構造及び階数RC造地上10階建 階建/階10階建/3階
建物現況住居中入居可能時期
用途地域第一種中高層住居専用地域法的規制など
建物権利土地権利所有権
借地権の詳細
駐車場・車庫駐車場:有り/空有/月額:11000円採光
情報更新日2025年12月19日次回更新日2025年12月31日
取引条件有効期限
管理費15900円修繕積立金14635円
その他費用取引態様専任
管理形態管理形態:全部委託/管理会社・管理情報:?大京アステージ/管理人状況:日勤/有施工会社
売主事業主
お問合せ先

株式会社中央住宅 ポラスグループ【宅建業 国土交通大臣(13)第2401号】

〒343-0845 埼玉県越谷市南越谷1-21-2

TEL:048-945-3935

※お問い合わせの際は「マイスマ」を見たとお伝えになるとスムーズです

営業時間:10:00~19:00/定休日:水曜日

条件の近い物件を検索

周辺の物件を地図から探す

テーマ別で物件を探す(朝霞市)

周辺の不動産会社

店舗の風景

有限会社朝霞ハウジング

〒351-0011 埼玉県朝霞市本町2-5-33 協和商事第1ビル…
Webサイトのプレビュー

かつみ不動産(株)

〒351-0034 埼玉県朝霞市西原2-9-1
Webサイトのプレビュー

かつみ不動産(株)朝霞…

〒351-0033 埼玉県朝霞市浜崎1-3-6 ル・クール1階
Webサイトのプレビュー

マックホーム株式会社

〒351-0011 埼玉県朝霞市本町2丁目7-31

物件の周辺情報

朝霞市周辺の施設

Yahoo!

この会社の他の物件

グリーンコーポ松戸み…

グリーンコーポ松戸みのり台
中古マンション

所在地

千葉県松戸市

価格

1,798万円

最寄り駅

新京成電鉄「みのり台…

間取り

2LDK

クレストフォルム市川…

クレストフォルム市川南アクアビュー
中古マンション

所在地

千葉県市川市

価格

3,780万円

最寄り駅

東京メトロ東西線「原…

間取り

3LDK

グリーンパーク花畑1

グリーンパーク花畑1
中古マンション

所在地

東京都足立区

価格

2,380万円

最寄り駅

東武伊勢崎・大師線「…

間取り

3LDK

シティテラス越谷レイ…

シティテラス越谷レイクタウンA棟
中古マンション

所在地

埼玉県越谷市

価格

4,680万円

最寄り駅

武蔵野線「越谷レイク…

間取り

3SLDK

ページの先頭へ