家を買う・借りる・
不動産会社を探すならマイスマ
マイスマ > 中古マンション > 埼玉県 > 草加市 > 草加旭町団地18号棟 1階部分
マイスマ > 不動産会社 > 埼玉県 > 越谷市 > 株式会社中央住宅 ポラスグループ > 草加旭町団地18号棟 1階部分
マイスマ
中古マンション
会員の何がお得なの?

草加旭町団地18号棟 1階部分

モバイル用QRコード

東武伊勢崎・大師線「新田」駅 徒歩7分

埼玉県草加市旭町3丁目3-18

780万円

物件詳細情報
物件名草加旭町団地18号棟 1階部分
設備周辺環境・新田小学校 920m・新田中学校 1,910m ・新田幼稚園 1,060m ・あさひ保育園 650m ・イトーヨーカドー新田店 530m ・東武ストアー新田店 430m ・セブン-イレブン 草加新田駅東口店 360m ・ドラッグセイムス 草加金明店 320m 外部居住組合員(不在組合員)には組合活動協力金年額7,000円別途徴収ポンプ室・集会所持分あり物件の周辺地図を表示しています。建物の位置正確でない場合がございます。
周辺環境新田小学校 距離:920m/新田中学校 距離:1910m
備考都市計画:市街化区域  ポラスの仲介東武伊勢崎線「新田」駅徒歩7分
南側は敷地内中庭で、陽当たり良好です
1階部分住戸
買い物に便利な立地です
交通 (1)東武伊勢崎・大師線「新田」駅 徒歩7分
所在地 埼玉県草加市旭町3丁目3-18
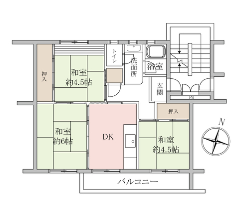
間取り3LDK敷地面積
専有面積53.87m2(壁芯) バルコニー面積6.38m2
築年月1970年6月総戸数380
構造及び階数RC造地上5階建 階建/階5階建/1階
建物現況空家入居可能時期
用途地域第一種住居地域法的規制など
建物権利土地権利所有権
借地権の詳細
駐車場・車庫駐車場:有り/空有/月額:6000円採光
情報更新日2026年4月1日次回更新日2026年4月13日
取引条件有効期限
管理費5000円修繕積立金14000円
その他費用取引態様専任
管理形態管理形態:一部委託/管理人状況:日勤施工会社
売主事業主
お問合せ先

株式会社中央住宅 ポラスグループ【宅建業 国土交通大臣(13)第2401号】

〒343-0845 埼玉県越谷市南越谷1-21-2

TEL:048-945-3935

※お問い合わせの際は「マイスマ」を見たとお伝えになるとスムーズです

営業時間:10:00~19:00/定休日:水曜日

条件の近い物件を検索

周辺の物件を地図から探す

テーマ別で物件を探す(草加市)

周辺の不動産会社

Webサイトのプレビュー

センチュリー21 オガ…

〒340-0011 埼玉県草加市栄町3丁目4-2
店舗の風景

大恵不動産株式会社

〒340-0034 埼玉県草加市氷川町2150-9
Webサイトのプレビュー

株式会社なまず屋不動…

〒340-0012 埼玉県草加市神明2丁目4番8号
Webサイトのプレビュー

サンリツホーム 株式…

〒340-0052 埼玉県草加市金明町502―3

物件の周辺情報

草加市周辺の施設

Yahoo!

この会社の他の物件

レーベン川口元郷タワ…

レーベン川口元郷タワー&レジデンス
中古マンション

所在地

埼玉県川口市

価格

3,780万円

最寄り駅

埼玉高速鉄道「川口元…

間取り

4LDK

野田川間ガーデンハウス

野田川間ガーデンハウス
中古マンション

所在地

千葉県野田市

価格

1,380万円

最寄り駅

東武野田線「七光台」…

間取り

3LDK

ファーストシーン津田沼

ファーストシーン津田沼
中古マンション

所在地

千葉県船橋市

価格

3,280万円

最寄り駅

総武本線「津田沼」駅 …

間取り

2SLDK

朝日プラザガーデンシ…

朝日プラザガーデンシティ新越谷C棟
中古マンション

所在地

埼玉県越谷市

価格

2,498万円

最寄り駅

武蔵野線「越谷レイク…

間取り

3LDK

ページの先頭へ