家を買う・借りる・
不動産会社を探すならマイスマ
マイスマ > 中古マンション > 千葉県 > 流山市 > コンドミニアム初石
マイスマ > 不動産会社 > 埼玉県 > 越谷市 > 株式会社中央住宅 ポラスグループ > コンドミニアム初石
マイスマ
中古マンション
会員の何がお得なの?

コンドミニアム初石

モバイル用QRコード

東武野田線「初石」駅 徒歩9分 / 東武野田線「江戸川台」駅 徒歩15分

千葉県流山市西初石2丁目913-1

2,188万円

物件詳細情報
物件名コンドミニアム初石
設備管理体制良好な分譲マンション西初石小・西初石中学校区閑静な低層マンションが並ぶ棟利便性高い商業施設が日々のサポートに・ペット飼育可(飼育細則有)・3階建ての3階部分、南東向き住戸につき陽当り良好・追炊き機能、浴室乾燥機付浴室・両面バルコニーにつき通風良好・各居室収納付・天井高最大3.3mの開放感・近隣にスーパー・ドラッグストアあり、住環境良好・屋根裏スペース付き住戸・新規内装リフォーム(2026.3月完了予定)
周辺環境西初石小学校 距離:1400m/西初石中学校 距離:1500m
備考都市計画:市街化区域 +屋根裏スペース 東武野田線「初石」駅徒歩9分。総戸数96戸のマンション。3階建の3階部分のお部屋。新規内装リノベーションの物件です。そのまますぐにお住まいいただけます。ご興味のある方は是非お問合せ下さい。
交通 (1)東武野田線「初石」駅 徒歩9分
(2)東武野田線「江戸川台」駅 徒歩15分
所在地 千葉県流山市西初石2丁目913-1
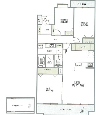
間取り3LDK敷地面積
専有面積76.39m2(壁芯) バルコニー面積11.67m2
築年月1984年3月総戸数96
構造及び階数RC造地上3階建 階建/階3階建/3階
建物現況空家入居可能時期
用途地域第一種低層住居専用地域法的規制など
建物権利土地権利所有権
借地権の詳細
駐車場・車庫駐車場:無/空無/月額:7000円採光南東
情報更新日2026年3月17日次回更新日2026年3月29日
取引条件有効期限
管理費8400円修繕積立金21160円
その他費用取引態様仲介
管理形態管理形態:全部委託/管理会社・管理情報:株式会社長谷工コミュニティ/管理人状況:日勤/有施工会社
売主事業主
お問合せ先

株式会社中央住宅 ポラスグループ【宅建業 国土交通大臣(13)第2401号】

〒343-0845 埼玉県越谷市南越谷1-21-2

TEL:048-945-3935

※お問い合わせの際は「マイスマ」を見たとお伝えになるとスムーズです

営業時間:10:00~19:00/定休日:水曜日

条件の近い物件を検索

周辺の物件を地図から探す

テーマ別で物件を探す(流山市)

周辺の不動産会社

店舗の風景

株式会社 アーチ

〒270-0163 千葉県流山市南流山1-10-4
Webサイトのプレビュー

センチュリー21キヨマ…

〒270-0163 千葉県流山市南流山3丁目10-1
Webサイトのプレビュー

有限会社 流山地所

〒270-0163 千葉県流山市南流山4―1―6
Webサイトのプレビュー

スターツピタットハウ…

〒270-0163 千葉県流山市南流山1丁目1-2MMビル1F

物件の周辺情報

流山市周辺の施設

Yahoo!

この会社の他の物件

松戸上本郷ハイライズ

松戸上本郷ハイライズ
中古マンション

所在地

千葉県松戸市

価格

2,950万円

最寄り駅

千代田・常磐緩行線「…

間取り

3LDK

ガーデン・シンフォニ…

ガーデン・シンフォニー新越谷
中古マンション

所在地

埼玉県越谷市

価格

5,180万円

最寄り駅

武蔵野線「南越谷」駅 …

間取り

4LDK

イデアクラスファースト

イデアクラスファースト
中古マンション

所在地

東京都葛飾区

価格

5,890万円

最寄り駅

京成本線「お花茶屋」…

間取り

3LDK

ルピアコート稲毛

ルピアコート稲毛
中古マンション

所在地

千葉県千葉市稲毛区

価格

3,980万円

最寄り駅

総武本線「稲毛」駅 徒…

間取り

3SLDK

ページの先頭へ