家を買う・借りる・
不動産会社を探すならマイスマ
マイスマ > 土地 > 東京都 > 足立区 > 足立区青井1丁目 建築条件付売地
マイスマ > 不動産会社 > 埼玉県 > 越谷市 > 株式会社中央住宅 ポラスグループ > 足立区青井1丁目 建築条件付売地
会員の何がお得なの?

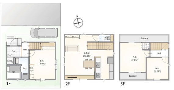
足立区青井1丁目 建築条件付売地

モバイル用QRコード

東武伊勢崎・大師線「五反野」駅 徒歩15分 / つくばエクスプレス「青井」駅 徒歩12分

東京都足立区青井1丁目

1,980万円

物件詳細情報

詳細情報

土地面積54.62m2(実測)坪数16.52坪
建ぺい率60%容積率160%
販売区画数総区画数
販売総面積 開発面積(総面積)
建築条件無し接道状況一方 北側 私道 幅4.0m
私道負担私道負担:無 セットバック:不要その他負担金
開発許可番号取引形態売主
用途地域第一種中高層住居専用地域完成予定年月完成済
土地権利の詳細所有権地目宅地
現況更地引渡し
法的規制
特記事項
周辺環境足立区立栗島小学校 距離:260m/足立区栗島中学校 距離:600m
備考都市計画:市街化区域  東武スカイツリーライン(東武伊勢崎線)「五反野」駅まで徒歩15分。つくばエクスプレス「青井」駅まで徒歩12分。
・建築条件付き売地
・閑静な住宅街
・注文住宅のご相談承ります
情報更新日2026年3月17日次回更新日2026年3月29日
取引条件有効期限
お問合せ先

株式会社中央住宅 ポラスグループ【宅建業 国土交通大臣(13)第2401号】

〒343-0845 埼玉県越谷市南越谷1-21-2

TEL:048-945-3935

※お問い合わせの際は「マイスマ」を見たとお伝えになるとスムーズです

営業時間:10:00~19:00/定休日:水曜日

条件の近い物件を検索

周辺の物件を地図から探す

テーマ別で物件を探す(足立区)

周辺の不動産会社

店舗の風景

株式会社オープンハウ…

〒120-0034 東京都足立区千住横山ビル2階
画像がありません

株式会社 石塚不動産

〒123-0842 東京都足立区栗原1丁目12-18
Webサイトのプレビュー

岡田不動産 株式会社

〒121-0813 東京都足立区竹の塚5―7―19
Webサイトのプレビュー

株式会社 ホームズリ…

〒121-0815 東京都足立区島根4―16―7

物件の周辺情報

足立区周辺の施設

Yahoo!

この会社の他の物件

品川区中延2丁目 土地

品川区中延2丁目 土地
土地

所在地

東京都品川区

価格

1億2,000万円

最寄り駅

東急池上線「荏原中延…

四街道市内黒田 1号地

四街道市内黒田 1号地
土地

所在地

千葉県四街道市

価格

1,530万円

最寄り駅

総武本線「四街道」駅…

千葉県柏市西原1丁目 …

千葉県柏市西原1丁目 売地
土地

所在地

千葉県柏市

価格

2,990万円

最寄り駅

東武野田線「江戸川台…

春日部市大沼6丁目 土地

春日部市大沼6丁目 土地
土地

所在地

埼玉県春日部市

価格

880万円

最寄り駅

東武伊勢崎・大師線「…

ページの先頭へ