| 物件名 | 松戸市松戸 新築戸建て |
| 交通 | (1)常磐線「松戸」駅 徒歩21分 |
| 所在地 | 千葉県松戸市松戸 |
| 販売価格 | 3,490万円 |
| 最多価格帯 | |
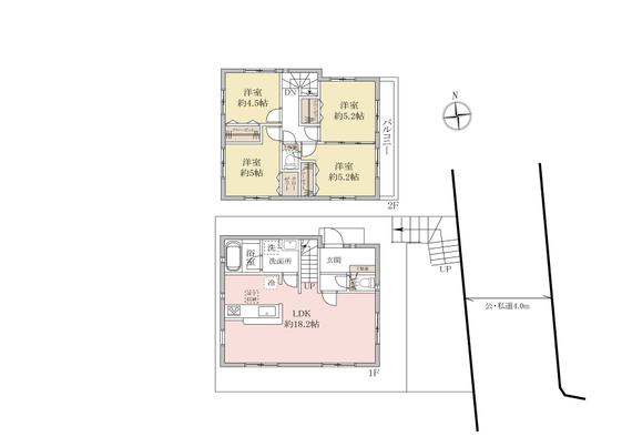
| 間取り | 4LDK |
| 建物面積 | 88.28m2 |
| 土地面積 | 101.1m2 |
| 建ぺい率 | 60% |
| 容積率 | ・160% |
| 完成予定日 | 2025年3月 |
| 総戸数 | 1 |
| 販売戸数/総戸数 | 1/1 |
| 建物構造 | 木造2階建 |
| 設備 |
| 物件の周辺地図を表示しています。建物の位置正確でない場合がございます。 |
| 周辺環境 |
| 柿ノ木台小学校 距離:800m/和名ヶ谷中学校 距離:1070m |
| 備考 |
| 都市計画:市街化区域 松戸駅 徒歩21分 高台に立地する新築住宅LDK18.2帖の4LDK |
| 現況 | 空家 |
| 入居可能時期 | 2025年4月 |
| 用途地域 | 第一種中高層住居専用地域 |
| 取引態様 | 専任 |
| 土地の権利 | 所有権 |
| 借地権の詳細 | |
| 駐車場 | |
| 採光 | |
| 情報更新日 | 2025年12月5日 |
| 次回更新日 | 2025年12月17日 |
| 取引条件有効期限 | |
| その他費用 | |
| 地目 | 宅地 |
| 私道負担 | 私道負担:無 セットバック:不要 |
| 接道状況 | 一方 東側 間口8.6m 公道 幅4.0m |
| 国土法 | |
| 建築確認番号 | 第R06SHC124433号 |
| 施工会社 | |
| 売主 | |
| お問合せ先 |
名称:株式会社中央住宅 ポラスグループ【宅建業 国土交通大臣(13)第2401号】 住所:埼玉県越谷市南越谷1-21-2 電話:048-945-3935 ※お問い合わせの際は「マイスマ」を見たとお伝えになるとスムーズです |