家を買う・借りる・
不動産会社を探すならマイスマ
マイスマ > 中古一戸建て > 東京都 > 足立区 > 足立区舎人6丁目 戸建て
マイスマ > 不動産会社 > 埼玉県 > 越谷市 > 株式会社中央住宅 ポラスグループ > 足立区舎人6丁目 戸建て
マイスマ
中古一戸建て
会員の何がお得なの?

足立区舎人6丁目 戸建て

モバイル用QRコード

日暮里・舎人ライナー「見沼代親水公園」駅 徒歩8分 / 日暮里・舎人ライナー「舎人」駅 徒歩12分

東京都足立区舎人6丁目

4,790万円

物件詳細情報
価格4,790万円その他負担金
交通 (1)日暮里・舎人ライナー「見沼代親水公園」駅 徒歩8分
(2)日暮里・舎人ライナー「舎人」駅 徒歩12分
所在地東京都足立区舎人6丁目
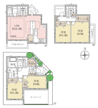
設備ポラスの仲介ポラスグループ旧分譲地全16棟2020年築・北東角地天井高2.5mのリビングでゆとりと解放感が感じられます。4LDK防災備蓄庫ウォークインクローゼットロングカウンターとダイニングテーブルを一体化させたキッチン全室南向きの2面採光・バルコニー3面で通風も良好です室内綺麗にお使いです物件のご見学・詳細は、担当大塚(おおつか)までお気軽にお問い合わせ下さい
周辺環境入谷小学校 距離:640m/入谷中学校 距離:720m
備考都市計画:市街化区域 
間取り4LDK建物面積104.17m2
土地面積70.96m2私道負担私道負担:無 セットバック:不要
築年月2020年10月建物構造木造3階建
駐車場駐車場:有り/空有接道状況ニ方 東側 間口5.5m 公道 幅15.0m 南側 間口1m 位置指定:有 北側 間口15.0m 幅1m 公道 幅9.0m 間口1m
土地権利所有権地目宅地
借地権の詳細
用途地域第一種中高層住居専用地域採光
建ぺい率80%容積率200%
現況住居中引渡時期
取引形態専任法的規制など
情報更新日2025年12月5日次回更新日2025年12月17日
取引条件有効期限
売主事業主
お問合せ先

株式会社中央住宅 ポラスグループ【宅建業 国土交通大臣(13)第2401号】

〒343-0845 埼玉県越谷市南越谷1-21-2

TEL:048-945-3935

※お問い合わせの際は「マイスマ」を見たとお伝えになるとスムーズです

営業時間:10:00~19:00/定休日:水曜日

条件の近い物件を検索

周辺の物件を地図から探す

テーマ別で物件を探す(足立区)

周辺の不動産会社

店舗の風景

株式会社オープンハウ…

〒120-0034 東京都足立区千住横山ビル2階
画像がありません

株式会社 石塚不動産

〒123-0842 東京都足立区栗原1丁目12-18
Webサイトのプレビュー

岡田不動産 株式会社

〒121-0813 東京都足立区竹の塚5―7―19
Webサイトのプレビュー

東京シティホーム株式…

〒123-0845 東京都足立区西新井本町2丁目14-10-101

物件の周辺情報

足立区周辺の施設

Yahoo!

この会社の他の物件

柏市つくしが丘2丁目 …

柏市つくしが丘2丁目 戸建て
中古一戸建

所在地

千葉県柏市

価格

3,980万円

最寄り駅

東武野田線「新柏」駅 …

間取り

6LDK

春日部市大沼5丁目 戸建

春日部市大沼5丁目 戸建
中古一戸建

所在地

埼玉県春日部市

価格

980万円

最寄り駅

東武伊勢崎・大師線「…

間取り

5LDK

柏市増尾2丁目 戸建て

柏市増尾2丁目 戸建て
中古一戸建

所在地

千葉県柏市

価格

2,380万円

最寄り駅

東武野田線「増尾」駅 …

間取り

5LDK

さいたま市 緑区大字大…

さいたま市 緑区大字大門 戸建て
中古一戸建

所在地

埼玉県さいたま市緑区

価格

5,180万円

最寄り駅

埼玉高速鉄道「東川口…

間取り

4LDK

ページの先頭へ