【マイスマ】 不動産・マイホーム・住まい探しはMAISUMA
お気にいり
お気にいりメニュー
中古一戸建
春日部市大沼6丁目 戸建

2,980万円

お気に入り

東武伊勢崎・大師線「春日部」駅 徒歩25分

埼玉県春日部市大沼6丁目

物件名春日部市大沼6丁目 戸建
交通 (1)東武伊勢崎・大師線「春日部」駅 徒歩25分
(2)東武野田線「春日部」駅 徒歩25分
所在地 埼玉県春日部市大沼6丁目
価格2,980万円
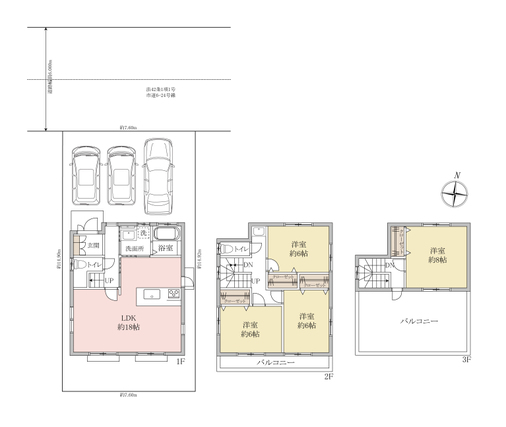
間取り4LDK
土地面積113.41m2
建物面積110.12m2
建ぺい率60%
容積率200%
完成時期
(築年月)
2021年8月
建物構造木造3階建
設備
周辺に生活利便施設がそろう便利な住環境(ローソン450m/コープみらい960m/秀和総合病院300m/大沼公園550m)   (物件の周辺地図を表示しています。建物の位置正確でない場合がございます。)
周辺環境
春日部市立上沖小学校 距離:900m/春日部市立大沼中学校 距離:290m
備考
都市計画:市街化区域  (ポラスの仲介)2沿線利用可能「春日部駅」利用/4LDK・カースペース並列3台可/2021年8月築・オール電化住宅・屋上バルコニー付/南側にゆとりがあり、陽当り良好です
現況住居中
入居可能時期
用途地域第一種中高層住居専用地域
取引形態専任
国土法
土地権利所有権
借地権の詳細
地目宅地
私道負担私道負担:無 セットバック:不要
接道状況一方 北側 公道 幅6.0m
駐車場駐車場:有り/空有
採光
その他負担金
情報更新日2025年12月5日
次回更新日2025年12月17日
取引条件有効期限
売主
事業主
お問合せ先

株式会社中央住宅 ポラスグループ【宅建業 国土交通大臣(13)第2401号】

〒343-0845 埼玉県越谷市南越谷1-21-2

電話:048-945-3935

営業時間:10:00~19:00/定休日:水曜日

※お問い合わせの際は「マイスマ」を見たとお伝えになるとスムーズです

PC版を表示する
サイトポリシー