家を買う・借りる・
不動産会社を探すならマイスマ
マイスマ > 中古一戸建て > 埼玉県 > 草加市 > 草加市西町
マイスマ > 不動産会社 > 埼玉県 > 越谷市 > 株式会社中央住宅 ポラスグループ > 草加市西町
マイスマ
中古一戸建て
会員の何がお得なの?

草加市西町

モバイル用QRコード

東武伊勢崎・大師線「草加」駅 徒歩15分

埼玉県草加市西町

3,390万円

物件詳細情報
価格3,390万円その他負担金
交通 (1)東武伊勢崎・大師線「草加」駅 徒歩15分
所在地埼玉県草加市西町
設備小学校・スーパー・コンビニ徒歩7分圏内外装リフォーム2018年5月完了・太陽光パネル設置ライフインフォメーション・西町小学校 400m/徒歩5分・草加中学校 1100m/徒歩14分・酒&業務スーパー 花栗店 350m/徒歩5分・セブンイレブン 草加西町保健所通り店 500m/徒歩7分4号駅側の物件が売りに出ました。前面道路は通り抜けできない為お子様も安心して遊べます。詳細は(株)中央住宅 草加営業所、担当:望月までお問い合わせください物件の周辺地図を表示しています。建物の位置正確でない場合がございます。
周辺環境西町小学校 距離:400m/草加中学校 距離:1100m
備考都市計画:市街化区域  ポラスの仲介平成28年11月築国道4号よりも東側の西町です
太陽光パネル設置済み
リビングには床暖房あり
カースペース1台あり
各居室の収納に加え納戸付きと収納豊富
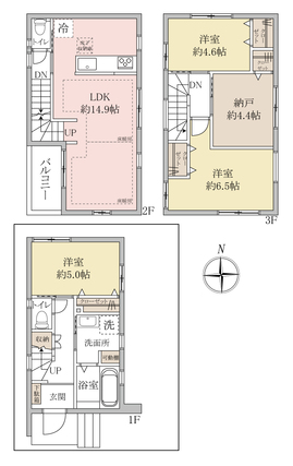
間取り3SLDK建物面積87.97m2
土地面積59.53m2私道負担私道負担:無 セットバック:不要
築年月2016年11月建物構造木造3階建
駐車場駐車場:有り/空有接道状況一方 東側 間口10.0m 私道 幅4.0m
土地権利所有権地目宅地
借地権の詳細
用途地域準住居地域採光
建ぺい率60%容積率200%
現況住居中引渡時期2026年7月
取引形態専任法的規制など
情報更新日2026年1月10日次回更新日2026年1月22日
取引条件有効期限
売主事業主
お問合せ先

株式会社中央住宅 ポラスグループ【宅建業 国土交通大臣(13)第2401号】

〒343-0845 埼玉県越谷市南越谷1-21-2

TEL:048-945-3935

※お問い合わせの際は「マイスマ」を見たとお伝えになるとスムーズです

営業時間:10:00~19:00/定休日:水曜日

条件の近い物件を検索

周辺の物件を地図から探す

テーマ別で物件を探す(草加市)

周辺の不動産会社

Webサイトのプレビュー

センチュリー21 オガ…

〒340-0011 埼玉県草加市栄町3丁目4-2
店舗の風景

大恵不動産株式会社

〒340-0034 埼玉県草加市氷川町2150-9
Webサイトのプレビュー

株式会社なまず屋不動…

〒340-0012 埼玉県草加市神明2丁目4番8号
Webサイトのプレビュー

株式会社 大地コーポ…

〒340-0034 埼玉県草加市氷川町2129―4 フォトアークビル…

物件の周辺情報

草加市周辺の施設

Yahoo!

この会社の他の物件

鎌ケ谷市道野辺中央4…

鎌ケ谷市道野辺中央4丁目 戸建て
中古一戸建

所在地

千葉県鎌ケ谷市

価格

2,680万円

最寄り駅

東武野田線「鎌ヶ谷」…

間取り

4LDK

野田市山崎 戸建

野田市山崎   戸建
中古一戸建

所在地

千葉県野田市

価格

2,780万円

最寄り駅

東武野田線「梅郷」駅 …

間取り

3LDK

さいたま市 岩槻区美園…

さいたま市 岩槻区美園東1丁目 戸建て
中古一戸建

所在地

埼玉県さいたま市岩槻区

価格

5,780万円

最寄り駅

埼玉高速鉄道「浦和美…

間取り

4LDK

柏市増尾6丁目 戸建て

柏市増尾6丁目 戸建て
中古一戸建

所在地

千葉県柏市

価格

3,990万円

最寄り駅

東武野田線「増尾」駅 …

間取り

2LDK

ページの先頭へ